EasyManua.ls Logo

Carrier 38QHC009DS series - Installation des Innengeräts; Installationsplatz Wählen; Installationsprozess

Carrier 38QHC009DS series
99 pages
To Next Page IconTo Next Page
To Next Page IconTo Next Page
To Previous Page IconTo Previous Page
To Previous Page IconTo Previous Page
Loading...
1. INSTALLATIONSVORBEREITUNG 2. INSTALLATION DES INNENGERÄTS
6
5
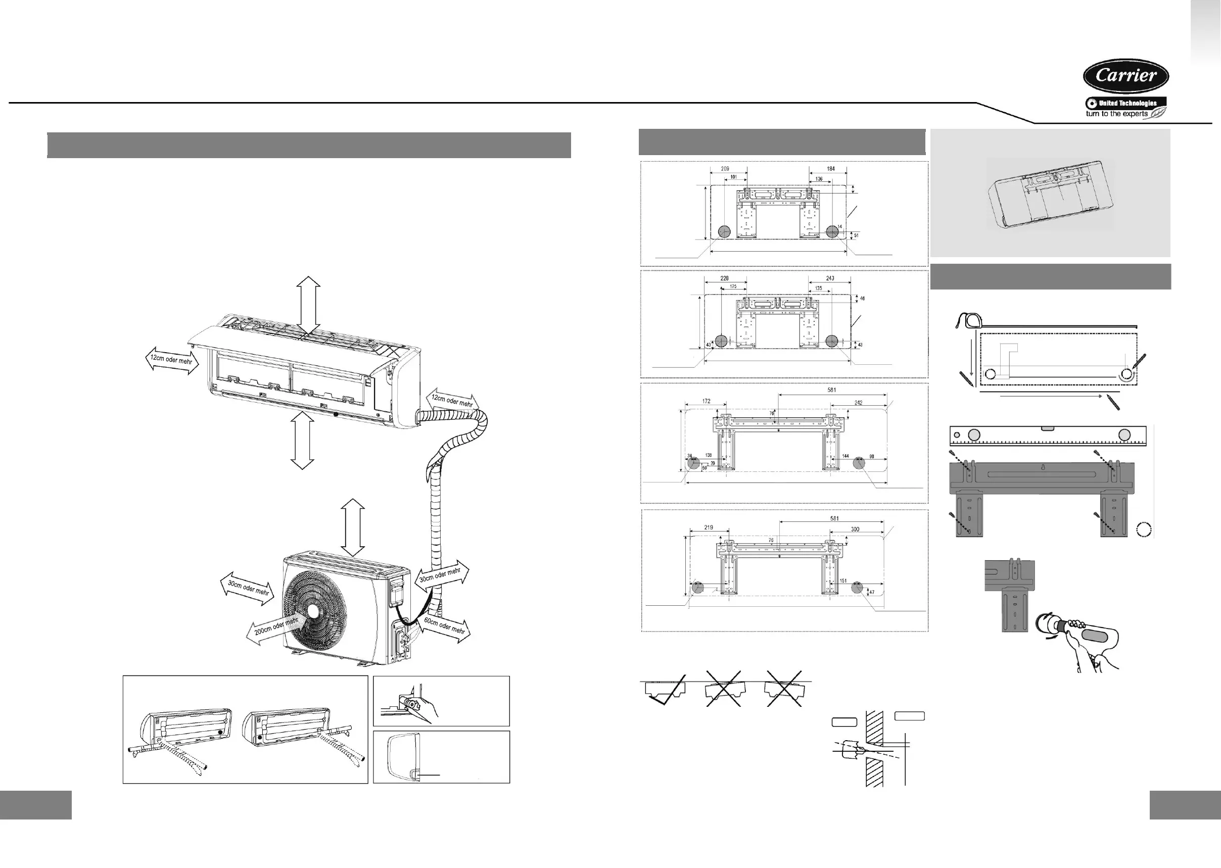
1.3 INSTALLATIONSPLATZHLEN
Innengerät
- Ein Standort, der das Gewicht des Innengeräts aufnehmen kann.
- Innengeräte dürfen nicht in der Nähe einer direkten Wärmequelle wie direkter Sonneneinstrahlung oder Heizkörpern installiert werden.
- Ein Standort mit den geeigneten Freiräumen, wie die Abbildung unten zeigt.
- Die beweglichen Teile des Geräts müssen sich in Höhe von mindestens 2,3m von dem Boden befinden/installiert sein.
Außengerät
- Ein Standort, der für die Installation geeignet und windgeschützt ist. Wenn das Gerät starkem Wind ausgesetzt ist, sollte eine Windblende verwendet werden.
- Ein Standort, der das Gewicht des Außengeräts aufnehmen kann und wo das Außengerät horizontal installiert werden kann.
- Ein Standort mit den geeigneten Freiräumen, wie die Abbildung unten zeigt.
Installieren Sie das Innen- oder Außengerät nicht an Stellen mit besonderen Umgebungsbedingungen.
Stellen Sie sicher, dass ausreichend Raum für die Montage und die Wartung vorhanden ist.
2.1 MONTAGEPLATTE DES INNENGERÄTS
Installation der Montageplatte
Befestigen Sie die Montageplatte horizontal und an der Wand anliegend mit fünf oder mehr
A-Schrauben.
Loch in die Wand bohren
Bohren Sie ein 65mm-Loch in die Wand, leicht schräg
nach außen.
Hinweis:
Die Montageplatte ist zum leichteren Transport mit einer Schraube befestigt;
Sie sollen diese Schraube vor der Installierung entfernen. (Siehe Abbildung)
Je nach Größe des Geräts wird die Montageplatte wie auf einer der Abbildungen
aussehen.
Die Löcher für die Befestigungsdübel sollen einen Durchmesser von 5mm haben.
2.2 INSTALLATIONSPROZESS
Schritt 1: Bestimmen Sie die Lage des Wandlochs
Schritt 2: Bringen Sie die Montageplatte an
Schritt 3: Bohren Sie das Wandloch
15cm oder mehr
2,3m oder mehr
60cm oder mehr
Innengerät Überblick
Kältemittelleitun
gloch rechts
hinten Ø65
42QHC009: (A: 730, B:291)
Kältemittelleitun
gsloch links
hinten Ø65
38,5
23,2/0,9
A
B
Innengerät Überblick
6,6
Hinweis:
Halten Sie die durch Pfeile
angezeigten Abstände
von Wand, Decke, Gitter oder
anderen Hindernissen ein.
Die Verrohrung ist hinten, links, hinten links und rechts möglich.
Stecken Sie den
mitgelieferten
Gummistopfen in
das nicht benutzte
Ablaufloch.
Schneiden Sie die
Nebenschalttafel
aus je nach Größe
der Verrohrung.
Nebenschalttafel
Einheit: mm
B
A
6,6
Kältemittelleitun
gloch rechts
hinten Ø65
Kältemittelleitun
gsloch links
hinten Ø65
42QHC012: (A: 812, B:300)
Einheit: mm
Innengerät
Überblick
B
A
Kältemittelleit
ungloch
rechts hinten
Ø65
Kältemittelleitu
ngsloch links
hinten Ø65
42QHC018: (A: 973, B:319)
Einheit: mm
53,5
53,5
Innengerät
Überblick
B
A
Kältemittelleitu
ngloch rechts
hinten Ø65
Kältemittelleitu
ngsloch links
hinten Ø65
42QHC024: (A: 1082, B:338)
Einheit: mm
53,5
53,5
174,3
148,7
15,3
Außen
Innen
5-7mm
Wand
Schraube
D E

Other manuals for Carrier 38QHC009DS series

Related product manuals