EasyManua.ls Logo

Carrier 3V VVT 33ZCVVTZC-01 - Page 7

Carrier 3V VVT 33ZCVVTZC-01
59 pages
To Next Page IconTo Next Page
To Next Page IconTo Next Page
To Previous Page IconTo Previous Page
To Previous Page IconTo Previous Page
Loading...
--4
Assembled in USA
by Belimo for CARRIER
35 inqb (4 Nm)
80, ,t10s
24VAC/DC
50/60Hz
3VA 2W
CCW
COM
CW
DMPPOS --
GND
HWV
IAQ
PAT
RH
SAT
SPT
Manual
Override
SOM _
1 3
blk red wht
LEGEND
Counterclockwise
Common
Clockwise
Damper Position
Ground
Hot Water Valve
Indoor Air Quality
Primary Air Temperature Sensor
Relative Humidity
Supply Air Temperature Sensor
Space Temperature Sensor
Field-Supplied Wiring
Factory Wiring
GN_ _"
GND
o sd
PAT
GND
©
_ > 13- D X a
o O _ o :_ z D z
B R Y Bt O - --
0 0 0 0 0 0 0 0 j_
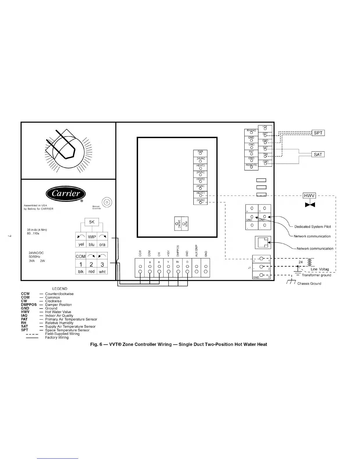
Fig. 6 -- VVT® Zone Controller Wiring -- Single Duct Two-Position Hot Water Heat
._._ I i,
ii
ii
ii
___11
I
.... i
Dedicated System Pilot
Network communication
Network communication
24] _
_L.-. Linevo,tag
.... I -- Transformer ground
-7L7 Chassis Ground

Table of Contents

Related product manuals