EasyManua.ls Logo

Carrier 40MKCB**C/24AHA4 - Dimensions - - Outdoor

Carrier 40MKCB**C/24AHA4
24 pages
To Next Page IconTo Next Page
To Next Page IconTo Next Page
To Previous Page IconTo Previous Page
To Previous Page IconTo Previous Page
Loading...
5
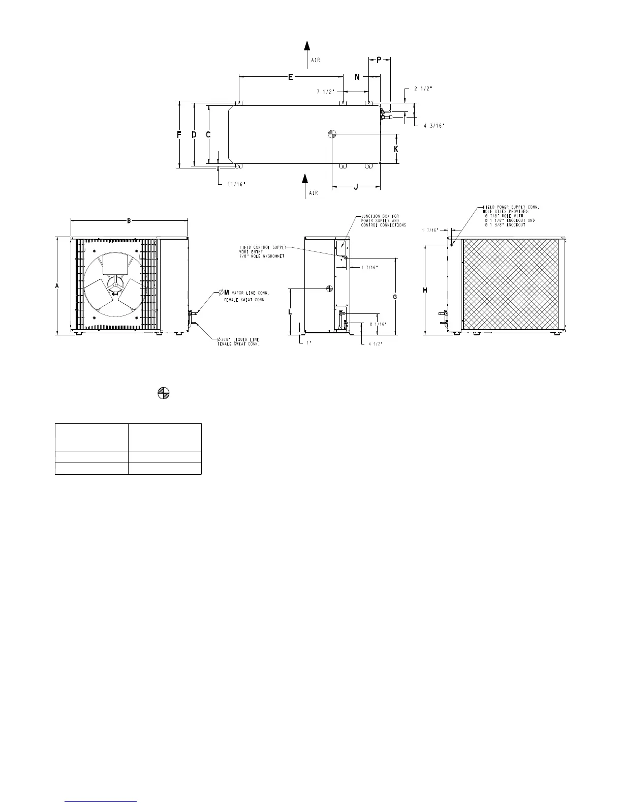
DIMENSIONS -- OUTDOOR
Fig. 8 -- Outdoor Unit Dimensions
NOTE:
S Center of Gravity
S All dimensions are in “inches” unless noted.
UNIT SIZE
MINIMUM
MOUNTING PAD
DIMENSIONS
18,24 23” x 42”
30,36 24” x 50”

Related product manuals