EasyManua.ls Logo

Carrier 42D Series - Page 93

Carrier 42D Series
140 pages
To Next Page IconTo Next Page
To Next Page IconTo Next Page
To Previous Page IconTo Previous Page
To Previous Page IconTo Previous Page
Loading...
93
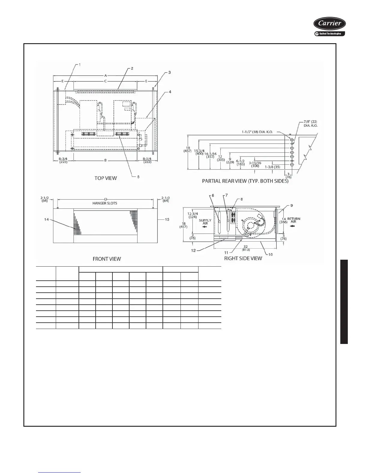
*Unit weights are based on dry coils and minimum rows. Weights exclude packaging,
valves, and other components.
NOTES:
1. Right hand unit shown; left hand unit opposite.
2. Coil stub-out connection data available on request.
3. Units fabricated of galvanized steel with an Arctic White baked finish.
4. Internal parts fabricated of galvanized steel.
5. Sizes 06, 08 and 10 have one motor, one blower. Sizes 12 through 20 have 2 motors,
2 blowers.
6. Units must have drain line pitched and trapped externally.
7. Stamped supply and return grilles are not available.
8. Bottom return air is not available.
9. See 42DA-203-1 for optional coil connections.
10. Fan switch and wall plate are not shown.
11. Dimensions are in inches (mm).
UNIT
SIZE
NOM
AIRFLOW
(Cfm)
DIMENSIONS (in. ±
1
/
8
) QTY/UNIT UNIT
WEIGHT*
(lb)
A B C D E Blower Motor
06 600 31 13
1
/
2
14 26 8
1
/
2
1 1 150
08 800 36 18
1
/
2
20 31 8 1 1 160
10 1000 40 22
1
/
2
24 35 8 1 1 170
12 1200 45 27
1
/
2
28 40 8
1
/
2
2 2 195
14 1400 50 32
1
/
2
34 45 8 2 2 205
16 1600 55 37
1
/
2
38 50 8
1
/
2
2 2 215
18 1800 60 42
1
/
2
44 55 8 2 2 230
20 2000 64 46
1
/
2
48 59 8 2 2 235
LEGEND
1—Junction Box
2—Return Air Grille, Hinged, Bar Type, with Fil-
ter Frame (Anodized Aluminum Only)
3—Unit Mounting Channel (2), 14-gage; 4
Mounting Slots,
1
/
2
in. x 2-in.
4—Auxiliary Drip Lip
5—Electric Strip Heater Element (optional)
6—Coil Inlet (See table on page 94), Copper
Sweat Connection
7—Coil Outlet (See table on page 94), Copper
Sweat Connection
8—Manual Air Vent
9—Filter, Throwaway
10 Bottom Access Panel
11 Drain,
7
/
8
-in. OD
12 Drain Pan Insulated with Styrofoam
13 Side Access Panel (2)
14 Discharge Air Grille (Double Deflection)
A42-4124
42DF EXPOSED CEILING UNIT WITH DISCHARGE AND RETURN GRILLE AND ELECTRIC HEAT
42D Series Units

Other manuals for Carrier 42D Series

Related product manuals