EasyManua.ls Logo

Carrier 58MXA - Servicing Hot Surface Igniter; Furnace Pressure and Drain Tubing Diagram

Carrier 58MXA
16 pages
To Next Page IconTo Next Page
To Next Page IconTo Next Page
To Previous Page IconTo Previous Page
To Previous Page IconTo Previous Page
Loading...
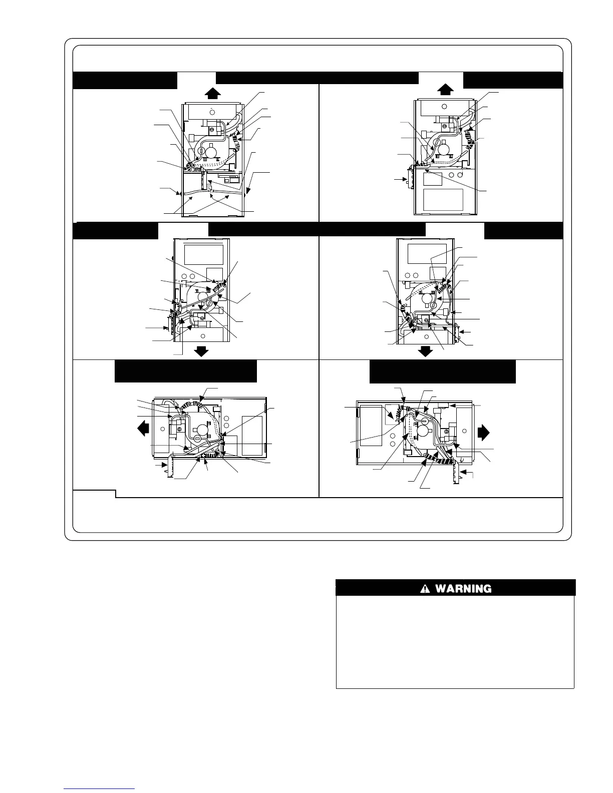
12. Reconnect pressure tubes to pressure switch. See diagram on
main furnace door for proper location of tubes. Be sure tubes
are not kinked. (See Fig. 8.)
13. Turn on gas and electrical supplies to furnace.
14. Check furnace operation through 2 complete heat operating
cycles. Check area below inducer housing, vent pipe, and
condensate trap to ensure no condensate leaks occur. If leaks
are found, correct the problem.
FIRE OR EXPLOSION HAZARD
Failure to follow the safety warnings exactly could result in
serious injury, death, or property damage.
Never test for gas leaks with an open flame. Use a commer-
cially available soap solution made specifically for the
detection of leaks to check all connections. A fire or explo-
sion may result causing property damage, personal injury, or
loss of life.
15. Check for gas leaks.
16. Replace main furnace door.
Step 6Servicing Hot Surface Igniter
The igniter does NOT require annual inspection. Check igniter
resistance before removal.
Fig. 8Furnace Pressure and Drain Tubing Diagram
A00308
Furnace is shipped from factory in upflow configuration. Pressure tube and drain tube routing MUST match the diagrams below.
Tube location when used in DOWNFLOW application
Tube location when used on
HORIZONTAL - RIGHT application
PLUG
CAP
COLLECTOR BOX DRAIN TUBE
(BLUE & WHITE STRIPED)
COLLECTOR BOX TUBE
(PINK)
COLLECTOR BOX DRAIN TUBE
(BLUE)
INDUCER HOUSING DRAIN TUBE
(VIOLET)
COLLECTOR BOX TUBE
(PINK)
COLLECTOR BOX DRAIN
TUBE
(BLUE & WHITE STRIPED)
COLLECTOR BOX DRAIN TUBE
(BLUE)
INDUCER HOUSING (MOLDED) DRAIN TUBE
(BEHIND COLLECTOR BOX DRAIN TUBE)
FIELD-INSTALLED
FACTORY-SUPPLIED DRAIN TUBE
COUPLING (LEFT DRAIN OPTION)
FIELD-INSTALLED FACTORY-SUPPLIED
DRAIN TUBE
FIELD-INSTALLED
FACTORY-SUPPLIED 1/2-IN.
CPVC STREET ELBOWS (2)
FOR LEFT DRAIN OPTION
COLLECTOR BOX TUBE
(GREEN)
CONDENSATE TRAP
CAP
Condensate Trap; Factory Installed
in Blower Shelf
CONDENSATE TRAP
COLLECTOR BOX TUBE (GREEN)
Condensate Trap on LEFT
Side Optional
CAP
PLUG
COLLECTOR BOX
DRAIN TUBE (BLUE)
PLUGGED END
COLLECTOR BOX DRAIN TUBE
(BLUE & WHITE STRIPED)
COLLECTOR BOX
TUBE (GREEN)
COLLECTOR BOX
TUBE (PINK)
COLLECTOR BOX
EXTENSION TUBE
CONDENSATE TRAP
INDUCER HOUSING DRAIN TUBE (VIOLET)
COLLECTOR BOX
EXTENSION TUBE
COLLECTOR BOX TUBE
(PINK)
COLLECTOR BOX DRAIN TUBE
(BLUE)
COLLECTOR BOX TUBE
(GREEN)
CONDENSATE TRAP
INDUCER HOUSING DRAIN
TUBE (VIOLET)
COLLECTOR BOX EXTENSION TUBE
COLLECTOR BOX DRAIN
TUBE
(BLUE & WHITE STRIPED)
Condensate Trap on
RIGHT Side
COLLECTOR BOX
EXTENSION DRAIN TUBE
DRAIN TUBE COUPLING
GAS VALVE
DRAIN TUBES ROUTED IN
FRONT OF GAS VALVE
PLUG
CAP
COLLECTOR BOX DRAIN TUBE
(BLUE & WHITE STRIPED)
CONDENSATE TRAP
COLLECTOR BOX
EXTENSION TUBE
COLLECTOR BOX
TUBE (GREEN)
INDUCER HOUSING
DRAIN TUBE
(VIOLET)
COLLECTOR BOX TUBE (PINK)
RELOCATE TUBE BETWEEN BLOWER
SHELF AND INDUCER HOUSING FOR
040,060, AND 080 HEATING INPUT
FURNACES
CAP
PLUG
COLLECTOR BOX DRAIN TUBE
(BLUE)
COLLECTOR BOX EXTENSION TUBE
COLLECTOR BOX TUBE (PINK)
COLLECTOR BOX
TUBE (GREEN)
COLLECTOR BOX DRAIN TUBE
(BLUE AND WHITE STRIPED)
INDUCER HOUSING DRAIN TUBE (VIOLET)
CONDENSATE TRAP
Condensate Trap on
LEFT Side
COLLECTOR BOX
DRAIN TUBE (BLUE)
PLUG
Tube location when used in UPFLOW application
Tube location when used on
HORIZONTAL - LEFT application
CAP
PLUG
COLLECTOR BOX
EXTENSION TUBE
DRAIN TUBE
COUPLING
COLLECTOR BOX EXTENSION DRAIN TUBE
(Blower access panel removed)
1. All tubing must be connected securely and routed to avoid kinks and traps.
2. Pressure tubing must always slope away from pressure switch to collector box connection as shown.
3. HORIZONTAL-LEFT installations require the collector box pressure tube to be relocated between the inducer housing and the blower shelf to
prevent a trap.Refer to the Installation Instructions for further details.
NOTE:
324999-201 REV. C
FIELD-INSTALLED
FACTORY-SUPPLIED
DRAIN TUBE COUPLING
(RIGHT DRAIN OPTION)
BURNER ENCLOSURE
PRESSURE REFERENCE
TUBE ASSEMBLY
BURNER ENCLOSURE
PRESSURE REFERENCE
TUBE ASSEMBLY
BURNER ENCLOSURE PRESSURE
REFERENCE TUBE ASSEMBLY
BURNER ENCLOSURE
PRESSURE REFERENCE
TUBE ASSEMBLY
BURNER ENCLOSURE
PRESSURE REFERENCE
TUBE ASSEMBLY
BURNER ENCLOSURE PRESSURE
REFERENCE TUBE ASSEMBLY
TUBE ROUTING
AUXILIARY "J" BOX RELOCATED HERE
7

Other manuals for Carrier 58MXA

Related product manuals