EasyManua.ls Logo

Carrier Aquasnap 30RAP070 - 30 RAP035-060

Carrier Aquasnap 30RAP070
76 pages
To Next Page IconTo Next Page
To Next Page IconTo Next Page
To Previous Page IconTo Previous Page
To Previous Page IconTo Previous Page
Loading...
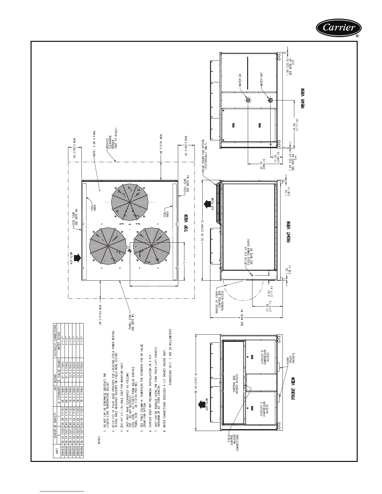
13
a30-4564
RADIUS 20 [508]
CONTROL BOX
HINGED ACCESS
88.50 [2247.9]
1.50
38.1[]
1.50
38.1[]
SEE NOTE #3
TYP.
1.00 25.4[]
SEE NOTE #3
TYP.
1.00 25.4[]
4.63
117.6[]
27.98
710.7[]
7/8 [22.4]
FIELD POWER ENTRY
SEE NOTE #2
44.00
1117.6[]
11.20
284.5[]
31.74
806.2[]
Y
X
H
SEE NOTE #5
42 [1067] MIN.
48 [1219] MIN.
42 [1067] MIN.
48 [1219] MIN.
92.50 [2349.5]
UNIT
CENTER OF GRAVITY UNIT HEIGHT VICTAULIC CONNECTIONS
X Y H (STANDARD) H (VALUE SOUND) WATER IN/OUT
30RA035
36.45 [926] 46.08 [1170] 66.5 [1689] 61.0 [1549] 2-1/2"
30RA040
36.24 [921] 44.03 [1118] 66.5 [1689] 61.0 [1549] 2-1/2"
30RA045
36.24 [921] 46.15 [1172] 78.5 [1994] 73.0 [1854] 2-1/2"
30RA050
36.00 [914] 44.00 [1118] 78.5 [1994] 73.0 [1854] 2-1/2"
30RA055
36.48 [927] 44.60 [1133] 78.5 [1994] 73.0 [1854] 2-1/2"
30RA060
36.50 [927] 44.56 [1132] 78.5 [1994] 73.0 [1854] 2-1/2"
REAR VIEW
CONTROL BOX
HINGED ACCESS
CIRCUIT A
COMPRESSOR
ACCESS
COIL
AREA
AIR FLOW
AIR FLOW
FRONT VIEW
CIRCUIT B
COMPRESSOR
ACCESS
TOP VIEW
RIGHT VIEW
COIL
AREA
SERVICE
CLEARANCE
BORDER
(NOT TO SCALE)
CG
NOTES:
1. DO NOT CAP OR OTHERWISE OBSTRUCT THE
LIQUID LINE TEMPERATURE RELIEF.
2. 7/8 [22.4] PILOT HOLE PROVIDED FOR LOCATING FIELD POWER WIRING.
ACTUAL HOLE REQUIRED DEPENDS ON FIELD WIRE SIZING.
3. 0.437 [11.10] HOLE USED FOR MOUNTING UNIT.
4. UNIT MUST HAVE CLEARANCES AS FOLLOWS:
TOP - DO NOT RESTRICT.
COIL SIDE - 42 [1067] FROM SOLID SURFACE.
PANEL SIDE - 48 [1219] PER NEC.
5. SEE TABLE COLUMN H; DIMENSION FOR STANDARD FAN OR VALUE
SOUND FAN OPTION.
6. CARRIER DOES NOT RECOMMEND INSTALLATION IN A PIT.
7. UNIT CAN BE HANDLED USING THE FORK TRUCK LIFT POCKETS
(MINIMUM OF 60" FORK LENGTH).
8. WATER CONNECTIONS RECESSED 4-1/2 INCHES INSIDE UNIT.
DIMENSIONS IN [ ] ARE IN MILLIMETERS
VALUE SOUND FAN OPTION
(PICTORIALLY ONLY)
AIR FLOW
FIELD
CONTROL
WIRING
CONNECTIONS
FORK
TRUCK
POCKETS
NOTE: 3 OR 4 FANS
PANEL SIDE
SEE NOTE #4
COIL SIDE
SEE NOTE #4
COIL SIDE
SEE NOTE #4
WATER-IN
WATER-OUT
9. DIMENSIONS ARE IN INCHES.
a30-4564
Base unit dimensions — 30RAP035-060

Related product manuals