EasyManua.ls Logo

Carrier Aquasnap 30RB 045R - 30 RB;30 RQ 090 R-160 R, Units with Water Buffer Tank Module

Carrier Aquasnap 30RB 045R
56 pages
To Next Page IconTo Next Page
To Next Page IconTo Next Page
To Previous Page IconTo Previous Page
To Previous Page IconTo Previous Page
Loading...
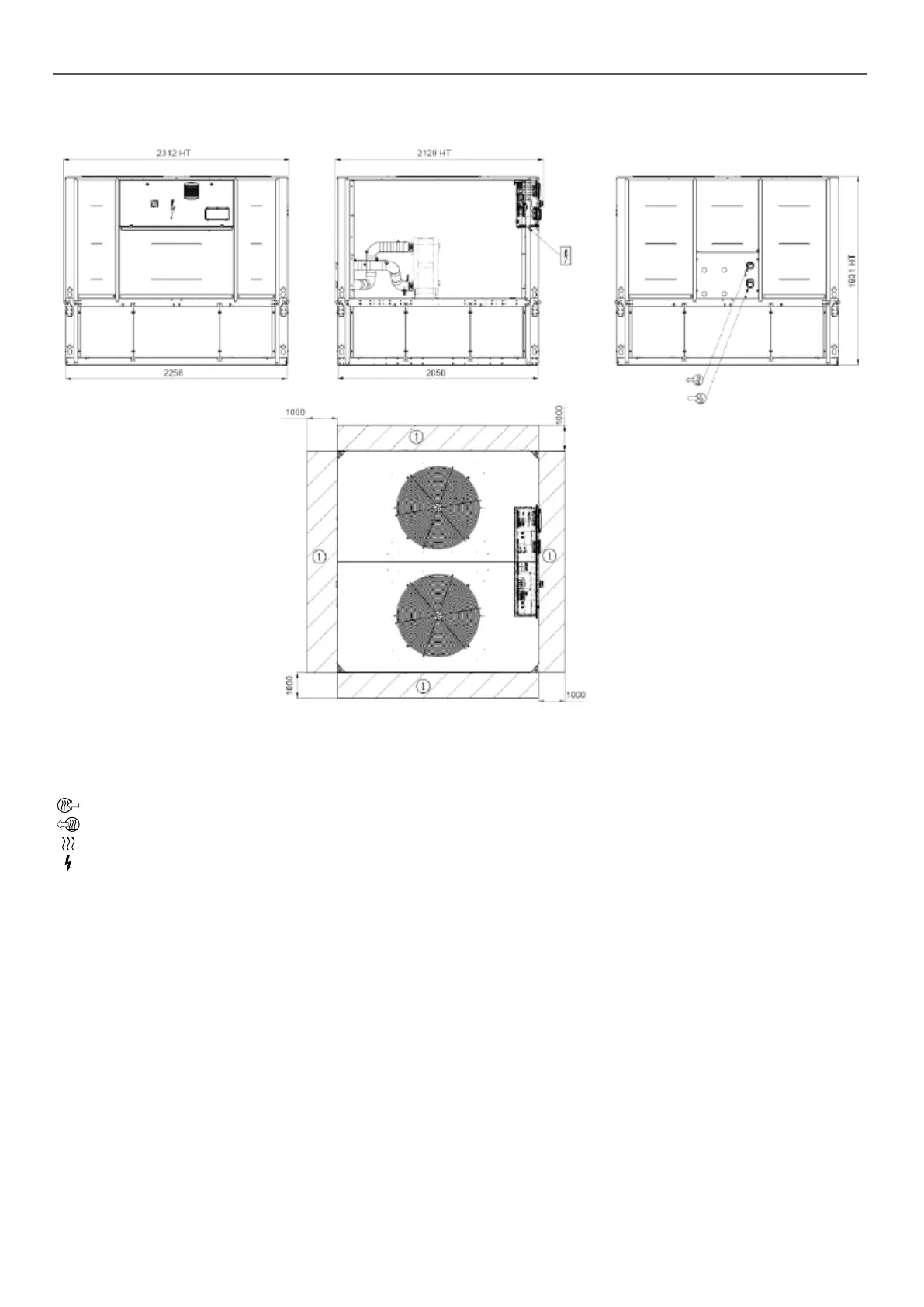
4.4 - 30RB/30RQ 090R-160R, units with water bu󰀨er tank module
Key:
All dimensions are given in mm.
NOTE: Non-contractual drawings.
When designing a system, refer to the certied dimensional
drawings provided with the unit or available on request.
Refer to the certied dimensional drawings for the location
of xing points, weight distribution and coordinates of the
centre of gravity, hydraulic and electrical connections.
B
Clearances required for maintenance and air ow
C
Clearance recommended for coil removal
Water inlet
Water outlet
Air outlet, do not obstruct
Control box
4 - DIMENSIONS, CLEARANCES, MINIMUM INSTALLATION DISTANCES
10

Table of Contents

Related product manuals