EasyManua.ls Logo

Carrier DHMSHAQ12XA3 - CONNECTION DIAGRAMS

Carrier DHMSHAQ12XA3
42 pages
To Next Page IconTo Next Page
To Next Page IconTo Next Page
To Previous Page IconTo Previous Page
To Previous Page IconTo Previous Page
Loading...
6
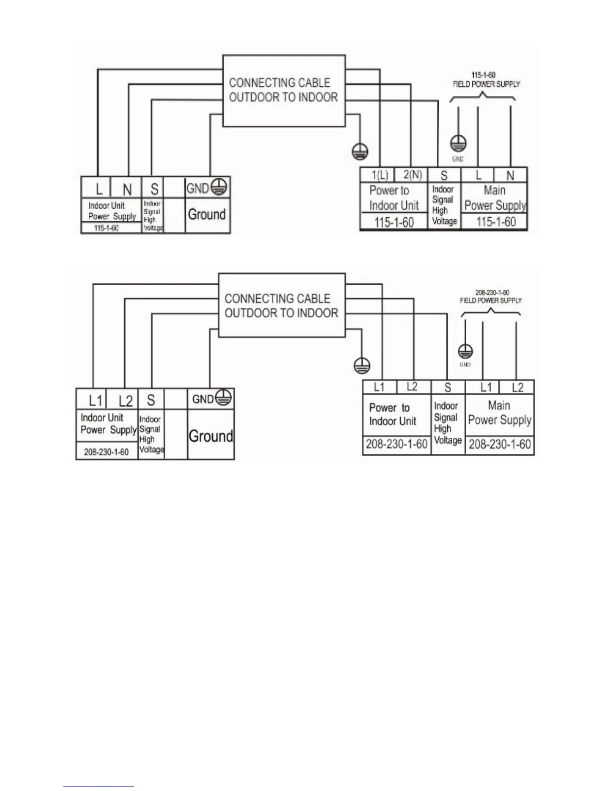
CONNECTION DIAGRAMS
Fig. 3 – 115V
Fig. 4 – 208−230V
Notes:
1. Do not use thermostat wire for any connection between indoor and outdoor units.
2. All connections between indoor and outdoor units must be as shown. The connections are sensitive to polarity and will result in a fault code.

Related product manuals