EasyManua.ls Logo

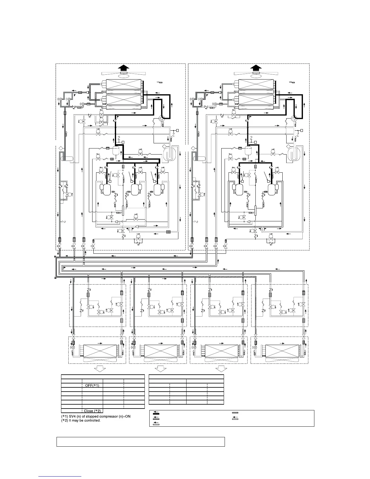
Carrier RBM-Y0383FUL - 5-1. All Cooling mode (Operation of cooling only) when outside temperature is high (Standard: 50°F or higher); Defrost mode

Carrier RBM-Y0383FUL
288 pages
To Next Page IconTo Next Page
To Next Page IconTo Next Page
To Previous Page IconTo Previous Page
To Previous Page IconTo Previous Page
Loading...
– 52 –
㪪㪭㪋㪉
࿶❗ᯏ
㩿䍐
SV
㩷㪫㪛㪉
PMV2
PMV2
PMV1
PMV1
PMV4 PMV4
FM
Fan motor
Fan
FM
Fan motor
Fan
TO
TO
Right side
Right side
Main
heat exchanger
Main
heat exchanger
Main
heat exchanger
Main
heat exchanger
Right side sub heat exchanger
Right side sub heat exchanger
Left side Left side
Left side sub heat exchanger Left side sub heat exchanger
SV
SV
SV
SV
SV
SV
SV
SV
SV
SV
SV
SV
SV
SV
SV
SV
TE1
TE1
TE2
TE2
SV11
SV
SV11
SV5
SV
SV5
SV6
SV
SV6
Check joint
( High pressure)
Check joint
( High pressure)
High pressure
sensor
High pressure sensor
SV2
SV
SV2
SV42
SV43
TD3
TK3
SV3F
TK2
TK2
Oil header
Oil header
SV3B
SV
SV3B
Balance pipe
Liquid pipe
Dischage gas pipe
Suction gas pipe
SV3A
SV
SV3A
SVD
SVD
SVD
SVS
SVS
SVS
SVDD
SVDD
SVDD
SVSS
SVSS
SVSS
PMV
PMV
PMV
PMV
TC1
TC1
TC1
Cooling
Cooling
Cooling Stop
Indoor unit
FS unit
TC2
TCJ
TC2
TCJ
TC2
TCJ
TC1
TC2
TCJ
SV
SV
SV
SVD
SV
SV
SVDD
SV
SV
SV
SV
SV
SV
SV
SVSS
SV
SV
SVS
SV
SV
TK5
TK5
TK1
TK1
TD2
SV3D
SV3D
Oil separator
Oil separator
SV41
SV
SV41
TL
TL
FP
FP
Liquid
tank
Liquid
tank
SV14
SV
SV14
Check
joint
(Liquid
pipe)
Check
joint
(Liquid
pipe)
SV3E
SV
SV3E
TD1
TD1
Comp.
1
High
pressure
SW
High
pressure
SW
High
pressure
SW
High
pressure
SW
High
pressure
SW
(Inverter)
Comp.
1
(Inverter)
Comp.
2
Comp.
3
(Inverter)
Comp.
2
(Inverter)
(Inverter)
SV3C
SV
SV3C
Accumulator
Accumulator
TS2
TS2
Check
joint
(Low
pressure
Check
joint
(Low
pressure
Low
pressure
sensor
Low
pressure
sensor
TS1 TS1
4-way
valve
4-way
valve
Fusible
plug
Fusible
plug
4-Way valve
SV4(n)
SV5
SV6
SV11
SV14
PMV4
PMV1, 2
ON
ON
OFF
Control
Control
OFF
SV3A
SV3B
SV3C
SV3D
SV3E
SV3F
Outdoor fan
Outdoor Unit
Control
Control
Control
Control
ON
Control
Control
The outdoor unit which communication line between indoor and outdoor is connected is the “Header unit”.
Other outdoor units are called “Follower units”.
FS unit / indoor unit
Cooling thermo ON
SVD
SVS
SVDD
SVSS
PMV
Stop
OFF
ON
ON
OFF
Control
SVD
SVS
SVDD
SVSS
PMV
(14 Ton system described in the example of (8 Ton + 6 Ton))
High-pressure gas refrigerant
Condensed liquid refrigerant
Evaporative gas refrigerant (Low pressure)
Pressure circuit (High-pressure refrigerant)
Low-pressure circuit (Refrigerant recovery line)
OFF
OFF
OFF
ON
Close
FP
Fusible
plug
FP
Fusible
plug
5-1. All Cooling mode (Operation of cooling only) when outside temperature is high
(Standard: 50°F or higher) / Defrost mode
Outdoor header unit (MMY-MAP0964FT
UL) Outdoor follower unit (MMY-MAP0724FT
UL)

Table of Contents

Related product manuals