EasyManua.ls Logo

CDA FW522 - Page 14

CDA FW522
24 pages
Print Icon
To Next Page IconTo Next Page
To Next Page IconTo Next Page
To Previous Page IconTo Previous Page
To Previous Page IconTo Previous Page
Loading...
14
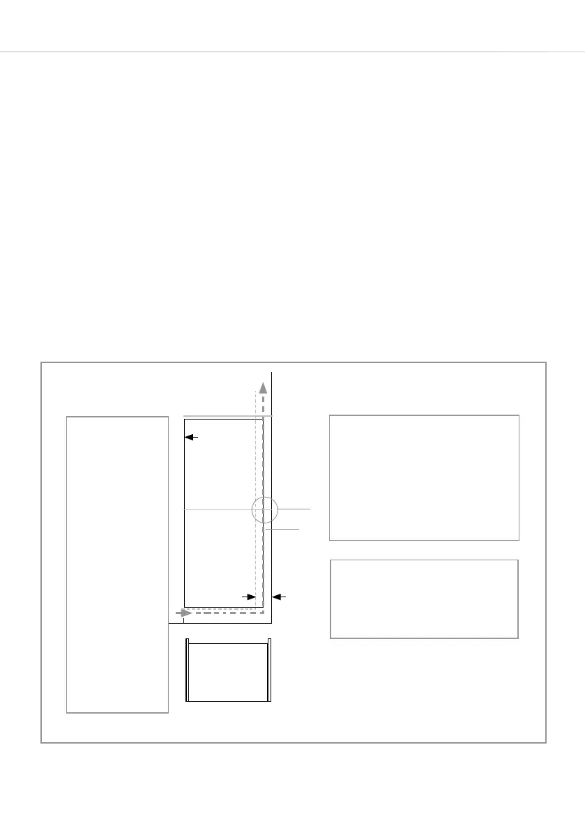
Ventilation
The main consideration when installing any refrigeration unit into
a fitted kitchen is ventilation. The heat removed from the cooling
compartment needs to be dissipated into the atmosphere. Incorrect
ventilation can lead to premature compressor failure, excessive power
consumption and total system failure. For products intended to be
installed into a housing unit, the following requirements need to be
met:
Important
Please follow the instructions to install this unit.
plan view of rear ventilation gap
The top of the cabinet needs to be
vented into the room
Recommended size of vent opening:
500 x 30mm
If the furniture does not allow free air
into the room then a plinth vent, or other
means of ventilation needs to be pro-
vided to ensure a natural flow of air
There should be space at the rear of the
cabinet to allow cool air to be drawn over
the condenser.
Recommended:
500 x 35mm
An air intake
should be provided
somewhere in
the cabinet run to
allow free air in.
In this example, a
plinth vent is shown
underneath the
refrigerator .
A cutout should be
made in the plinth
below the fridge/
freezer and this
finished neatly using
the air vent grille
supplied.
Alternatively, a thin
section of the plinth
can be removed
to allow air into the
unit (recommended
600mm x 10mm).
Refrigerator
outline
Min 30mm
Fig. 6

Related product manuals