EasyManua.ls Logo

Clint 262 - Page 15

Clint 262
29 pages
Print Icon
To Next Page IconTo Next Page
To Next Page IconTo Next Page
To Previous Page IconTo Previous Page
To Previous Page IconTo Previous Page
Loading...
21
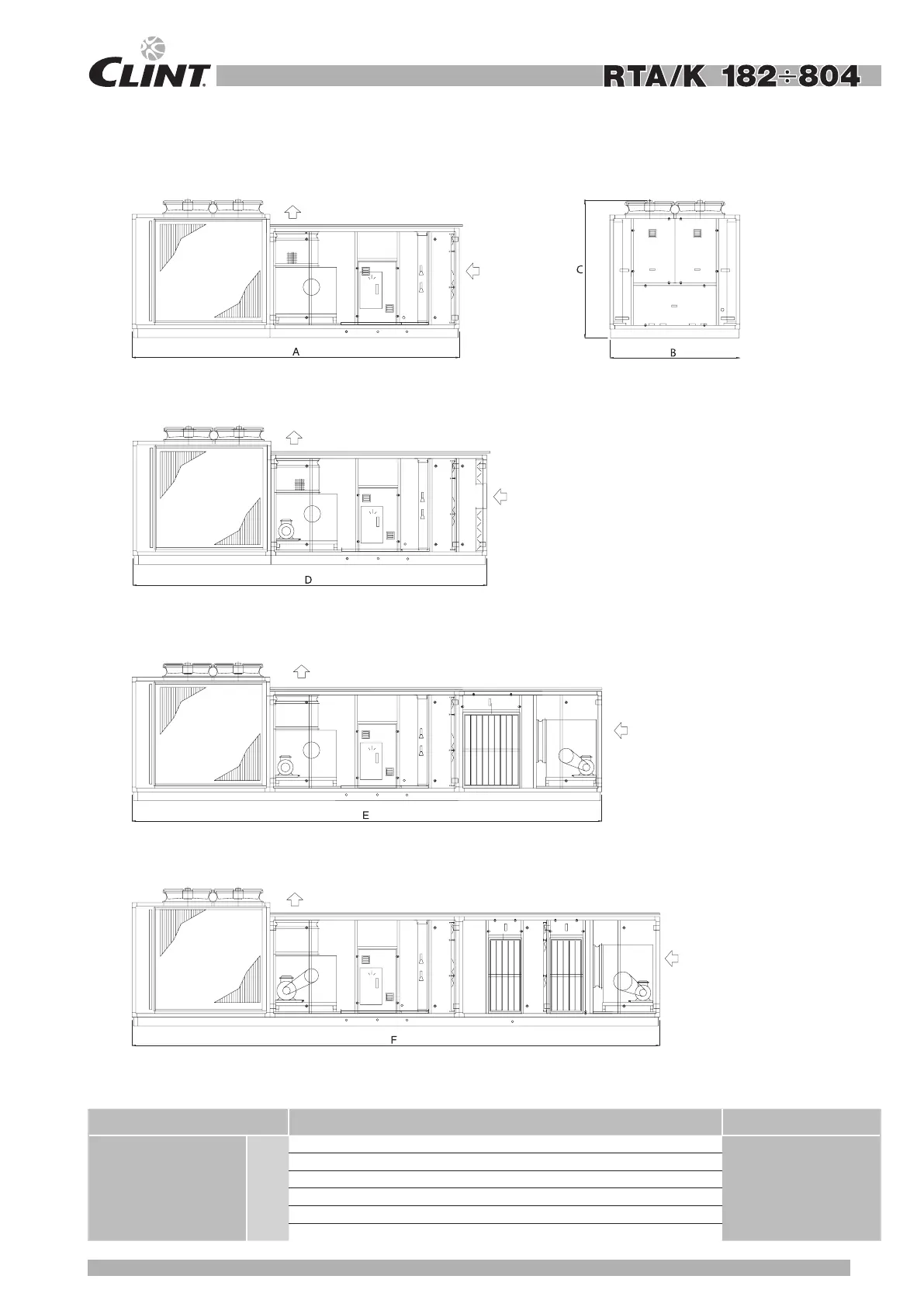
MODELLO / MODELL
393 453 524 604 804
MODELL / MODELE
Lunghezza
Width
A
5510 5510 6170 6320 8090
Länge
Largueur
Larghezza
Length
B
2200 2200 2200 2200 2200
Breite
Longueur
Altezza
Height
C
2340 2340 2340 2510 2510
Höhe
Hauteur
Lunghezza
Width
D
5960 5960 6610 6760 8550
Länge
Largueur
Lunghezza
Width
E
7910 7910 9090 9480 11750
Länge
Largueur
Lunghezza
Width
F
8880 8880 10130 10390 12360
Länge
Largueur
COMPOSIZIONI CON SEZIONI AGGIUNTIVE
ZÜSATZLICHE SEKTIONEN ZUSAMMENSETZUNG
COMPOSITIONS WITH COMPLEMENTARY SECTIONS
COMPOSITION AVEC SECTION ADDITIONNELLES
RTA/K/ECO/REC-FX/UMI
RTA/K/WP/ECO/REC-FX/UMI
RTA/K/ECO/UMI
RTA/K/WP/ECO/UMI
RTA/K/MS/UMI
RTA/K/WP/MS/UMI
RTA/K/UMI
RTA/K/WP/UMI

Related product manuals