EasyManua.ls Logo

Clint 262 - Heat Pump Control Wiring Diagrams for Models 524-804; Wiring for Larger Heat Pump Models 524-804

Clint 262
29 pages
Print Icon
To Next Page IconTo Next Page
To Next Page IconTo Next Page
To Previous Page IconTo Previous Page
To Previous Page IconTo Previous Page
Loading...
39
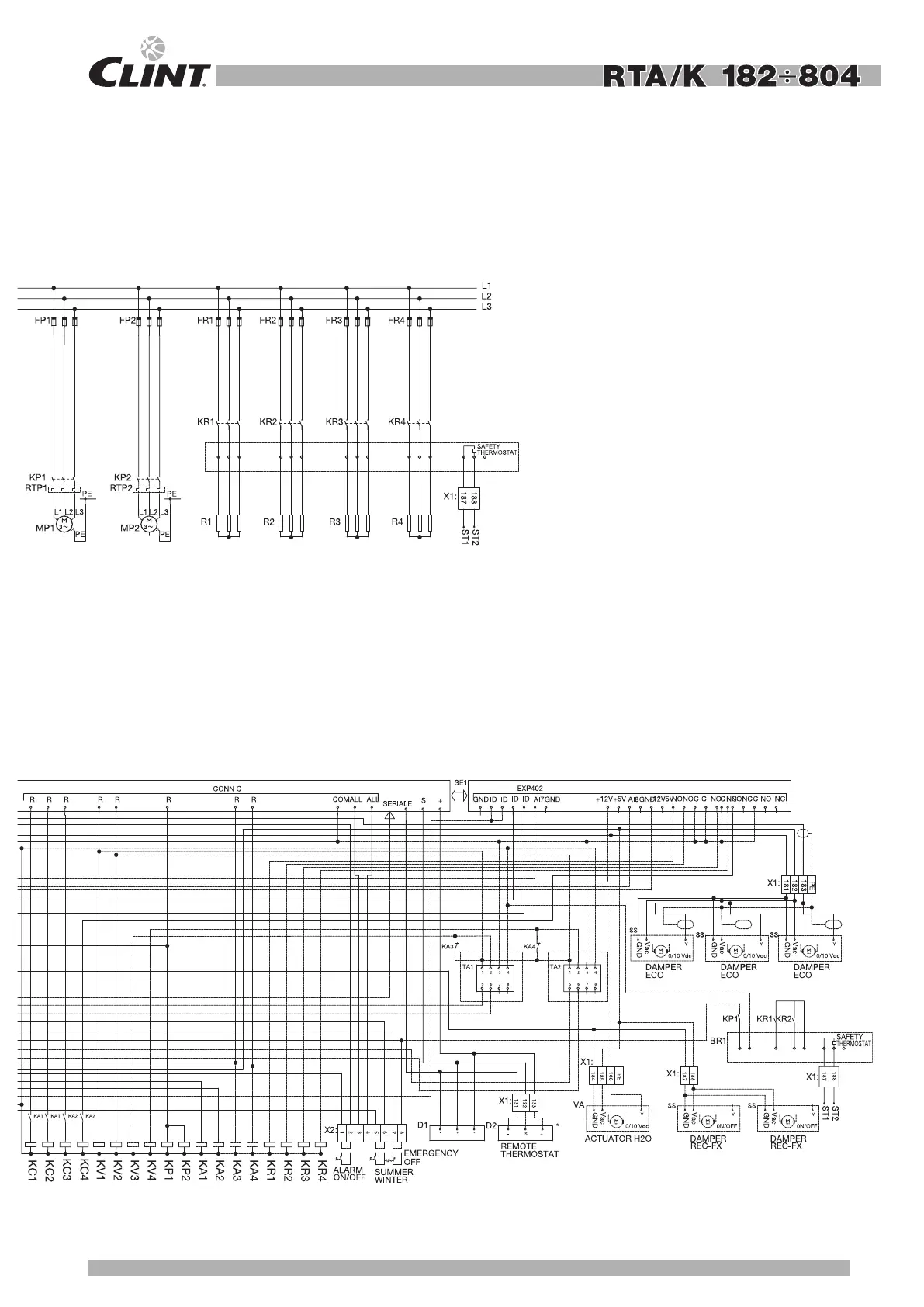
REGELUNG SCHALTPLAN:
RTA/K/WP 524 ÷ 804
- Schaltplan Erklärung auf seite 31;
-
Die ausgezeichneten Sektionen sind die optionalen oder
bei der Installation durchzuführenden Verbindungen.
SCHÉMA ÉLECTRIQUE
DE CONTRÔLE:
RTA/K/WP 524 ÷ 804
- Explanation de le diagramme électrique à la page 31;
- Les parties en pointillés indiquent les liaisons
optionelles ou à effectuer lors de l'installation.
REGELUNG SCHALTPLAN:
RTA/K/WP 524 ÷ 804
- Schaltplan Erklärung auf seite 31;
-
Die ausgezeichneten Sektionen sind die optionalen oder
bei der Installation durchzuführenden Verbindungen.
SCHÉMA ÉLECTRIQUE
DE CONTRÔLE:
RTA/K/WP 524 ÷ 804
- Explanation de le diagramme électrique à la page 31;
- Les parties en pointillés indiquent les liaisons
optionelles ou à effectuer lors de l'installation.

Related product manuals