EasyManua.ls Logo

COEF PERFORMANCE 250DV DVP - Page 14

Default Icon
32 pages
Print Icon
To Next Page IconTo Next Page
To Next Page IconTo Next Page
To Previous Page IconTo Previous Page
To Previous Page IconTo Previous Page
Loading...
Pag. 14 http://www.coef.it - info@coef.it
11.0 TROUBLESHOOTING
PROBLEM CAUSEACTION
The projector doesnt swich on
The projector swiches on but doesnt
answer to commands
Defecting projection
Projection withhalo
Thecolor or other effects doesnt
coincide to theselected value.
ThePAN or TILT movement doesnt
coincide to theselcted value
- The power supply is not present
- The lamp is not working
- Thethermal switch is active
- Wrong DMX configuration
- Defective cables
- LEDAisoff
- Defective control unit
- The lens is broken
-
Dust or grease stored on theall parts
of projector
- Dust or grease stored on theall parts
of projector
- Position sensor dirty with dust or grea-
se
- Defective motor
-Electronic board
- Defective motor
-Electronic board
Check if the luminous indicator is lighted or not.
Replace the lamp.
Just to wait for little of time
Make sure that the projector is correctly confi-
gurated.
Replace or repair theDMX cable.
Check the control unit & DMX cable
Check the control unit by means of ot
her wor
-
king projectors.
Technical aid is required.
Check that the lens are not broken.
Remove dust or grease stored on lenses.
Carefullyclean the optical group lenses and the
projector components (see “Maintenance
chapter).
Carefullyclean the optical group lenses and the
projector components (see “Maintenance”).
Technical aid is required.
Technical aid is required.
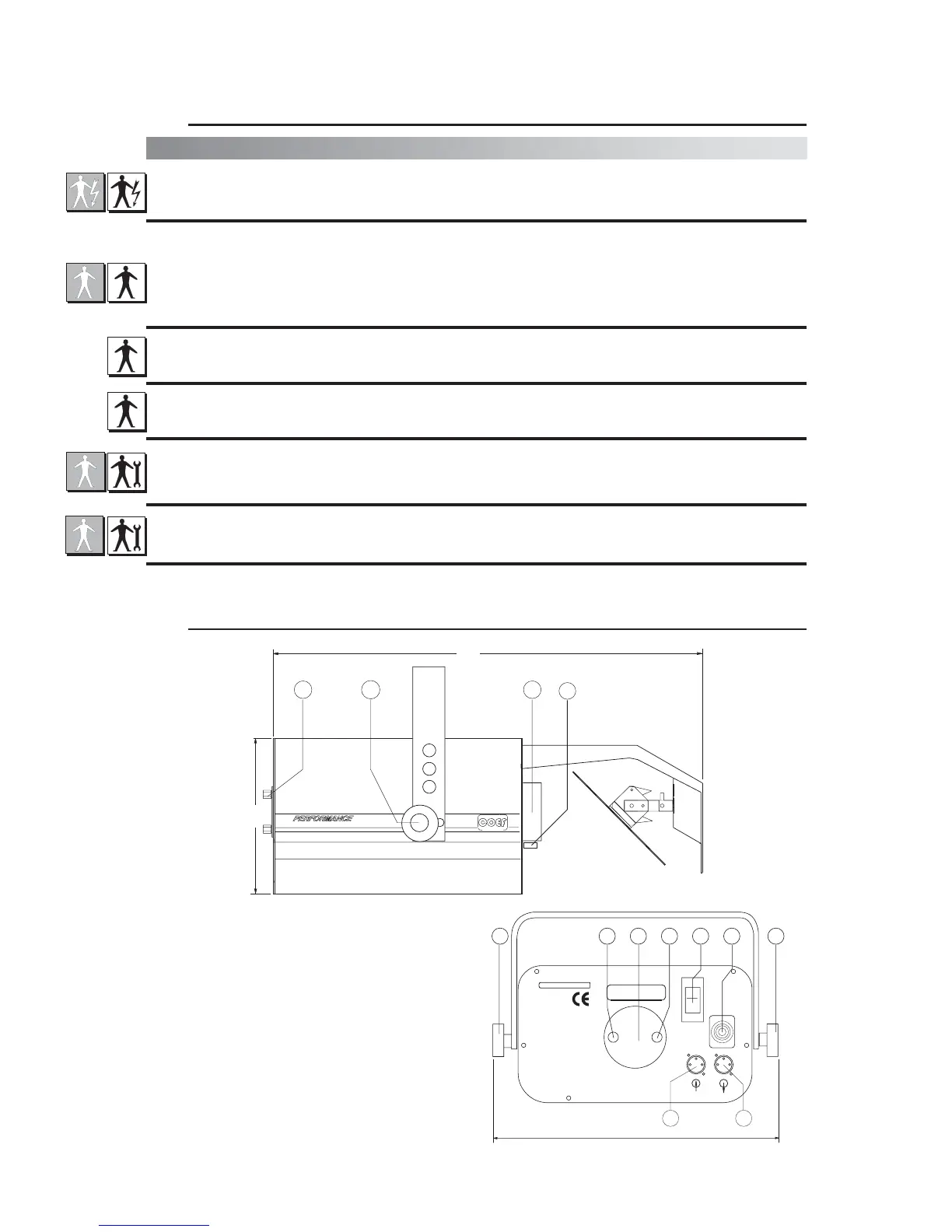
12.0 DIMENSION & COMPONENTS
DO NOT OPEN THE LAMP COVER BEFORE
HAVING DISCONNECTED THE POWER
HAVING DISCONNECTED THE POWER
CAUTION:
S/N
PIN1: GND
PIN1: GND
PIN2: SIGNAL-
PIN2: SIGNAL-
PIN3: SIGNAL+
PIN3: SIGNAL+
PIN3: SIGNAL+
PIN3: SIGNAL+
IN OUT
380
1
2
3
4
5
4 6
7
1
175
620
8
1
9
10
250 DVP
LIST OF PARTS
1 - LockKnobs
2 -DMX IN
3 -DMX OUT
4 - Screws for lamp panel
5 - Lamp panel
6 - Mains switch
7 - Mains power soket
8 -Adjustement screws for light beam
9 - Finallens
10 - Focus adjustment

Related product manuals