EasyManua.ls Logo

COZY III - Page 15

Default Icon
81 pages
Print Icon
To Next Page IconTo Next Page
To Next Page IconTo Next Page
To Previous Page IconTo Previous Page
To Previous Page IconTo Previous Page
Loading...
Cozy III
Pilot’s Operating Handbook Page 15
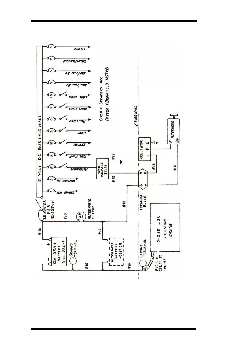
Figure 3: Basic Electrical System with Alternator