EasyManua.ls Logo

Creative Engineering ROCK-A-FIRE EXPLOSION - Page 263

Default Icon
326 pages
Print Icon
To Next Page IconTo Next Page
To Next Page IconTo Next Page
To Previous Page IconTo Previous Page
To Previous Page IconTo Previous Page
Loading...
,..
....
_
.....
,
......
-
.....
,.,..,..
.y
L-+UMIOVAL
DATWIC
REATIVE
=~~
-.cnoo.APP.
a..,.
ENG
INEE
RINGooc:=.
I I I
lrn~~'
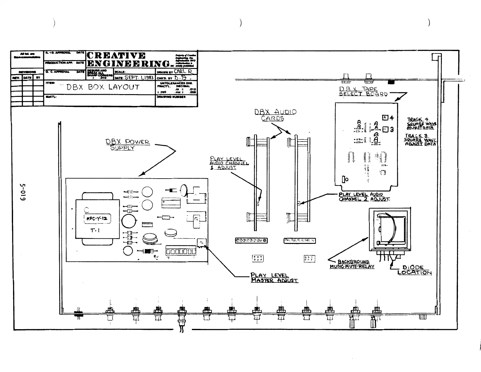
D
BX
BOX
LAYOUT
\.n
I
0
-
\.0
-n.:
...
±
±010
.xu±
-WINO
NUII-II
0~')(
Pov~
"->
_ _l,IPPLY /
-l!J]-
0
--=
{)
~
-1:1~
__
\ .k-'
....,
....-L--~__,
. 0
F~
11
- t
-rru-
t:::=::j
L
-arr-
~·-"'"_c-Y._-t~J
o
EJ
-o-
~
T·l
o-[]~
Q
~-----......J
--lJ]}--
~
---
~IJ]}-o
~
0 _,JII!Ir-
looouood
t"'
"J
PLAY
L£Vf.L
AU!lliLC±I.f\W>I.E.l.
i At:lJU5T.
!P:?JQ'J
rt;(f;(J
0T0]
fOOOl
. o o
(!
1
r-.:~<:~
ro;;-;:
~
'M'if;)iJ-~~Js-r
=
I!J+
A
I'
A
' , A .,
..a."
j""ro..
EJ
3
~=·
~
... .,..;\1, a
•IIOJ..4
·"::-oi:CI-
fl
fi
~~11
Qo
~~
n
'
·:
P~Jtt&:L
A~
~
2~,::
BI\CKGROUNll
)
1l
~~~4
..
~JISW'A\If.
Ai)_ol.~lt8:1l\.
t~~~
~..M.
WA>lf._,
A~~Td
MUSIC.Mure--~El,AY
L
DIODe;
LOCATION.
mrn