EasyManua.ls Logo

Crown Xavier X-4KW-M - Battery Connection; Cable Size and Wiring Steps

Crown Xavier X-4KW-M
52 pages
To Next Page IconTo Next Page
To Next Page IconTo Next Page
To Previous Page IconTo Previous Page
To Previous Page IconTo Previous Page
Loading...
5
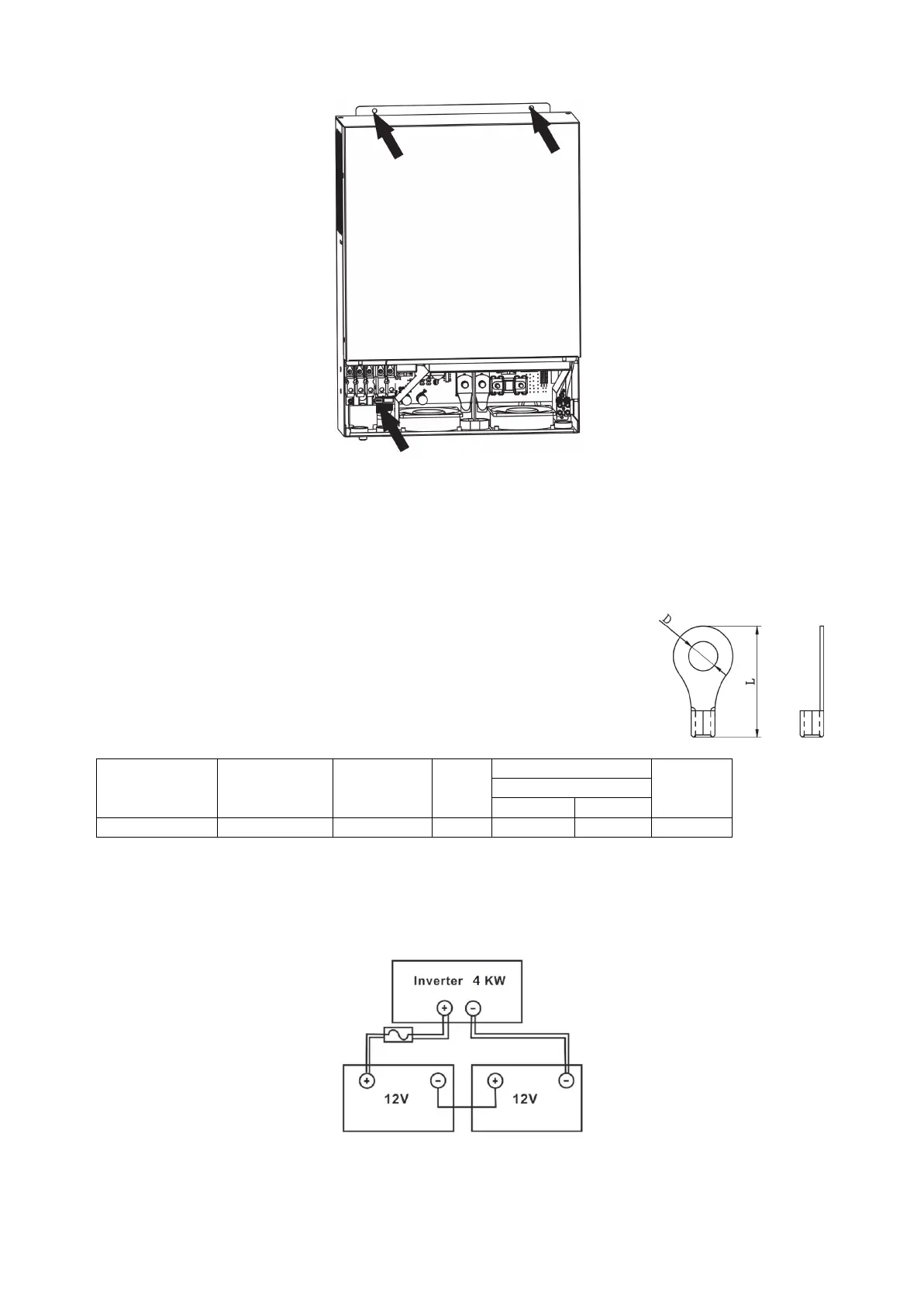
Mounting the unit by screwing the two screws as shown below. It’s recommended to use M4 or M5 screws.
Battery Connection
CAUTION: For safety operation and regulation compliance, it’s requested to install a separate DC over-current
protector or disconnection device between battery and the inverter. It may not be necessary to have a
disconnection device in some applications, however, it’s still recommended to have over-current protection
installed. Please refer to typical amperage as required.
WARNING! All wiring must be performed by a qualified electrical technician.
WARNING! It's very important for system safety and efficient operation to use
appropriate cables for battery connection. To reduce risk of injury, please use the
proper recommended cable in the table below.
Recommended battery cable size:
Model
Typical
Amperage
Wire Size
Cable
mm
2
Ring Terminal
Value
Dimensions
D (mm)
L (mm)
X-4KW-M
165A
4*4AWG
25
8.4
33.2
Please follow below steps to implement battery connection:
1. Supports 24VDC system. Connect all battery packs as below chart. It is recommend to connect minimum of
100Ah capacity battery
.
Ring terminal: