EasyManua.ls Logo

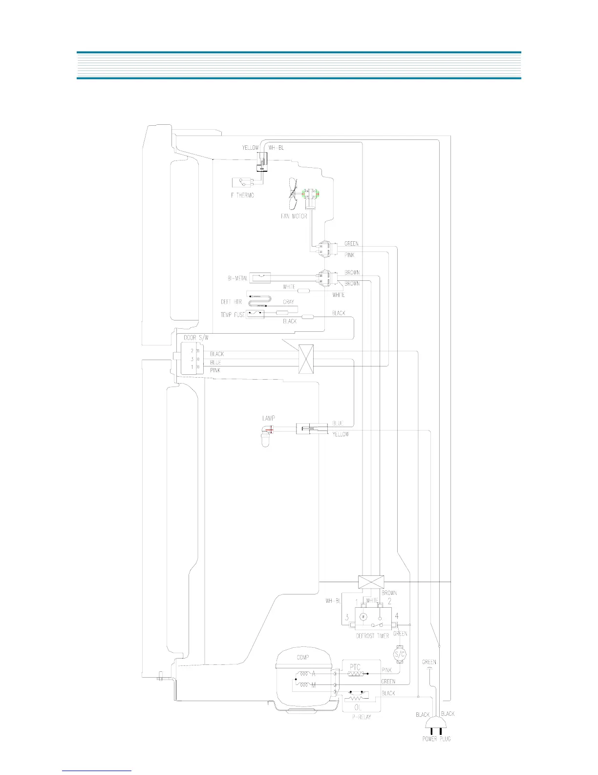
Daewoo DMR - 08SO - 2)Practic Wiring Diagram

Daewoo DMR - 08SO
15 pages
Print Icon
To Next Page IconTo Next Page
To Next Page IconTo Next Page
To Previous Page IconTo Previous Page
To Previous Page IconTo Previous Page
Loading...
8
Diagram
2)Practic Wiring Diagram
󰼿

Related product manuals