EasyManua.ls Logo

Daikin EBLA14DAV3 - Page 324

Daikin EBLA14DAV3
360 pages
Print Icon
To Next Page IconTo Next Page
To Next Page IconTo Next Page
To Previous Page IconTo Previous Page
To Previous Page IconTo Previous Page
Loading...
6 | Technical data
Service manual
324
EBLA09~16DA + EDLA09~16DA
Daikin Altherma 3 M
ESIE20-06A – 2021.03
Hydro module
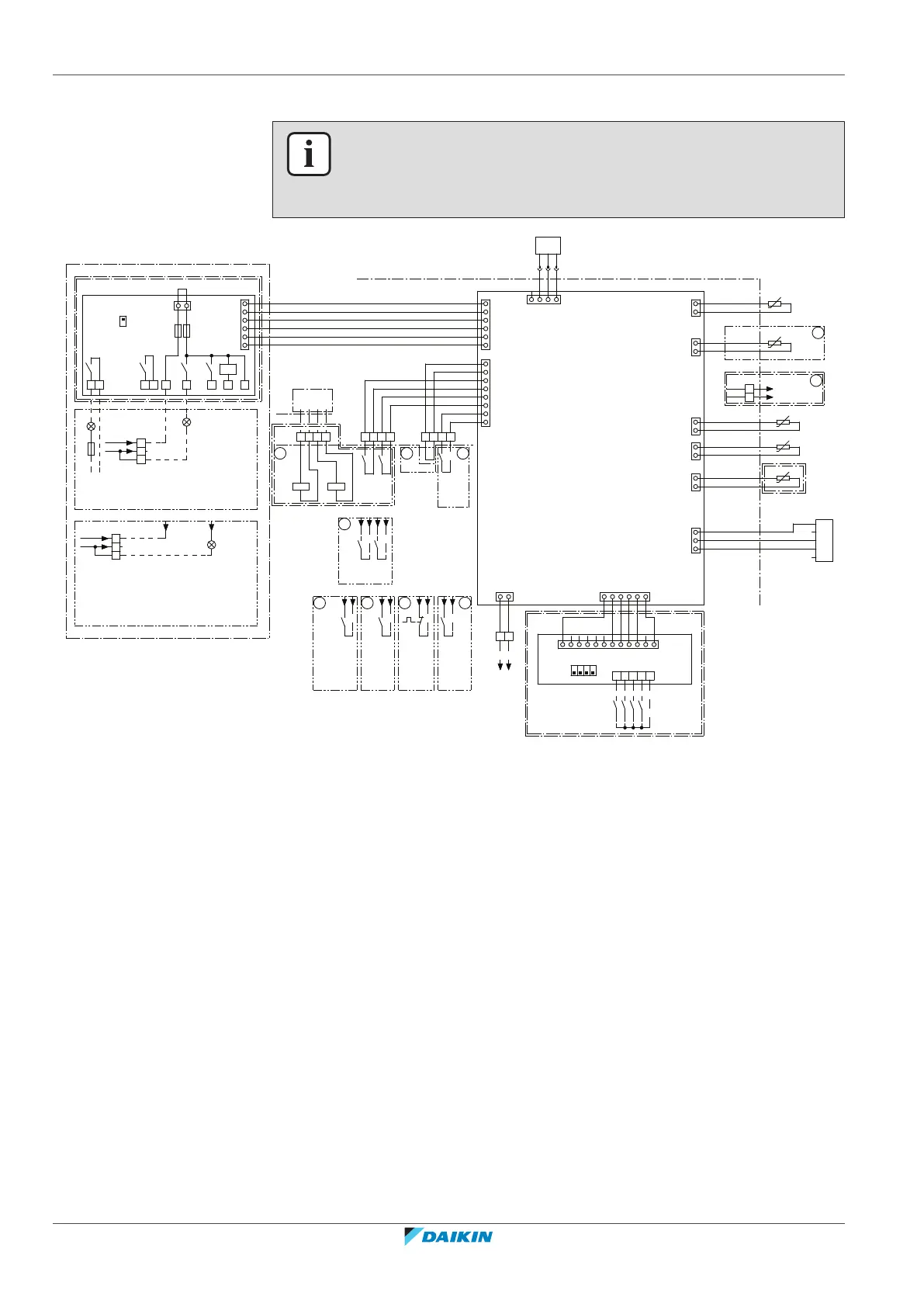
INFORMATION
The diagrams shown in this manual may be incorrect due to changes/updates to the
unit. Correct diagrams are supplied with the unit and can also be found in the
technical data book.
4D124072C
Ext. heat source
Max. load 0.3 A - 250 V AC
Min. load 20 mA - 5 V DC
Alarm output
Max. load
0.3 A - 250 V AC
Space C/H
On/OFF output
Max. load 0.3 A - 250 V AC
Options: ext. heat source output, alarm output
Options: On/OFF output
PHC1
Only for demand PCB option
Only for digital I/O PCB option
Digital I/O PCB
Power limitation
digital inputs:
12 V DC / 12 mA detection
(voltage supplied by PCB)
For external BUH option
For internal BUH model
SWB1
1
1
3
Electric pulse
meter input:
12 V DC pulse
detection
(voltage supplied
by PCB)
Preferential kWh
rate power supply
contact:
16 V DC detection
(voltage supplied
by PCB)
SWB1
for HV smartgrid
for HP tarrif
Smartgrid
contacts
Electric pulse
meter input:
12 V DC pulse
detection
(voltage supplied
by PCB)
1
3
for smartgrid
Smartgrid
PV power
pulse meter
for safety
thermostat
Safety thermostat
contact:
16 V DC detection
(voltage supplied
by PCB)
2
2
4
4
Only for domestic
hot water option
SWB1
1
for LV smartgrid
230V AC
Control Device
R3T
-t°
X5A
1
R4T
-t°
R5T
-t°
10 11 1298765432
1
X80A
2
3
4
5
6
3
F2U
F1U
S9S
R1T
-t°
2
X85A
1
KFR
KCR
KHURKHR
1
X801M
2 3 4 5
DS1
OFF
ON
1 2 3 4
A8P
A4P
SS1
1
OFF
ON
X2X1 YC Y1
9
X2M
8
9
X2M
8
7
A1P
L N
Y4Y2X3 X4 Y3
7
S8S
S7S
S6S
X60A
1
432
3 4 5 6
2
X7A
1
2
X8A
1
2
X9A
1
2
X40A
1
2
3
4
5
6
7
8
X33A
1
2
3
4
5
6
B1PW
2
X7Y
31
1
X5M
2
R2T
-t°
X6A
1
2
2
X48A
1
X34A
1
2
3
16
X5M
15
X5M
10 9 6 5 4 313
K1A
A1
A2
K1A
A1
A2
K2A
X5M
14
K2A
S3S
S2S
S1S
S4S
Q4L
5
4
3
2
1
B1L
X10M
1 2 3 4
S10S
S11S
CN2
1
CN1
1
L1 N1 L2 N2
X2M.13
A1P/X28A.1
A4P.YC
A4P.Y2
X2M.13
A1P/X28A.1
X15M.1
X15M.2
A11P/X1B.1
A11P/X1B.2
X5M.10
X5M.9
X5M.4
X5M.3
X5M.6
X5M.5
X5M.14
X5M.13
X5M.10
X5M.9
X5M.6
X5M.5

Table of Contents