EasyManua.ls Logo

Daikin FHA100AVEB - INSTALLATION SITE GUIDELINES

Daikin FHA100AVEB
20 pages
Print Icon
To Next Page IconTo Next Page
To Next Page IconTo Next Page
To Previous Page IconTo Previous Page
To Previous Page IconTo Previous Page
Loading...
English 4
NOTE
Read the operation manual attached to the
remote controller you are using.
When using a wireless remote controller, refer to the
operation manual attached to the wireless remote
controller kit.
If your installation has a customized control system,
ask your local dealer for the operation that corre-
sponds to your system.
Heat pump type
This system provides COOLING, HEATING,
AUTOMATIC, PROGRAM DRY, and FAN ONLY
OPERATION modes
Cooling only type
This system provides COOLING, PROGRAM
DRY, and FAN OPERATION modes.
PRECAUTIONS FOR GROUP CONTROL
SYSTEM OR TWO REMOTE CONTROLLERS
CONTROL SYSTEM
This system provides two other control systems
beside individual control (one remote controller con-
trols one indoor unit) system. Confirm the following if
your unit is the following control system type.
Group control system
One remote controller controls up to 16 indoor units.
All indoor units are equally set.
Two remote controllers control system
Two remote controllers control one indoor unit (In
case of group control system, one group of indoor
units).
NOTE
Contact your local dealer in case of changing the
combination or setting of group control and two
remote controller control systems.
Please do not change the combination and set-
tings for the group operation and two remote con-
trollers control systems by yourself, but be sure to
ask your local dealer.
B Multi system
1 Unit with remote controller
B
OUTDOOR INDOOR
1
1
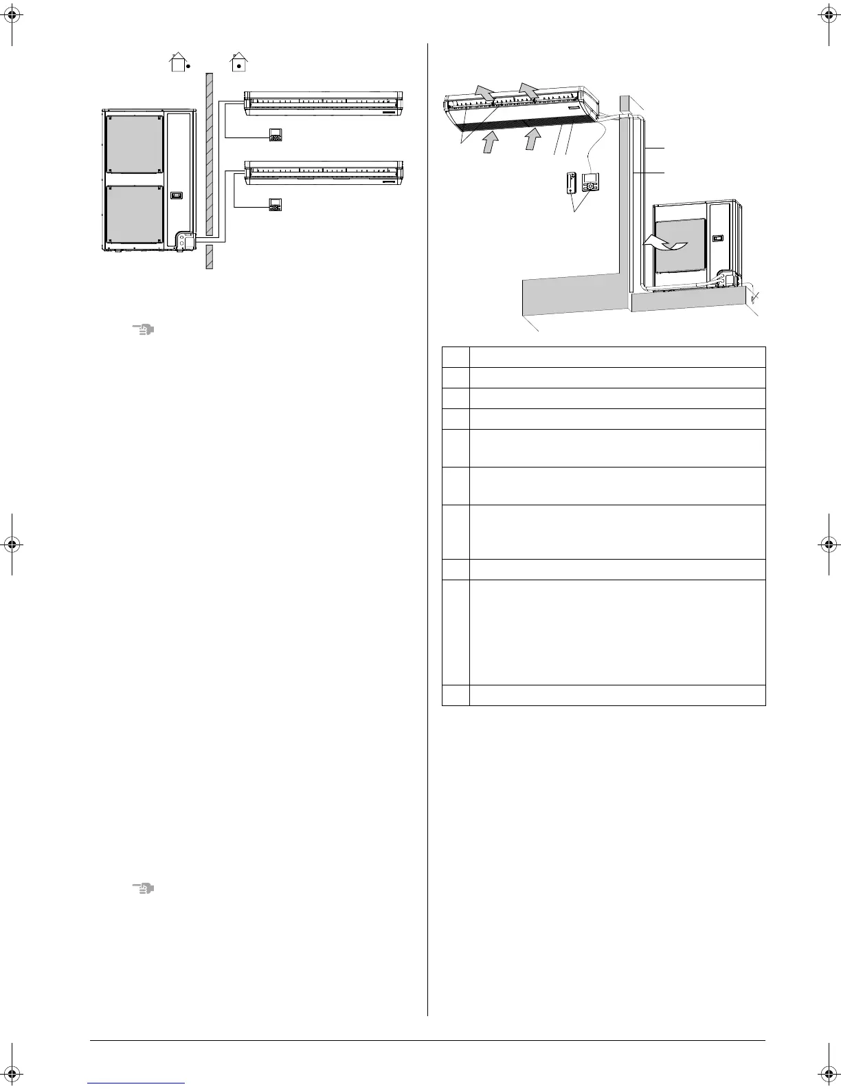
Names and functions of parts
1 Indoor unit
2 Outdoor unit
a Air discharge
b Horizontal blade (at air discharge)
c
Suction grille
(Refer to “8. MAINTENANCE” on page 9.)
d
Air filter (inside suction grille)
(Refer to “8. MAINTENANCE” on page 9.)
e
Remote controller (optional part)
The remote controller may not be needed
depending on the system configuration.
f Drain piping
g
Refrigerant piping
Transmission wiring
(NOTE)
It is wiring to let electricity flow from the
indoor unit to the earth for prevention of
electric shocks / a fire in case of emergency.
h Earth wiring
a
a
h
1
2
b
cd
e
g
f
4PEN465376-1.book Page 4 Wednesday, March 15, 2017 3:03 PM

Other manuals for Daikin FHA100AVEB

Related product manuals