EasyManua.ls Logo

Daikin FUD25B - Page 137

Daikin FUD25B
167 pages
Print Icon
To Next Page IconTo Next Page
To Next Page IconTo Next Page
To Previous Page IconTo Previous Page
To Previous Page IconTo Previous Page
Loading...
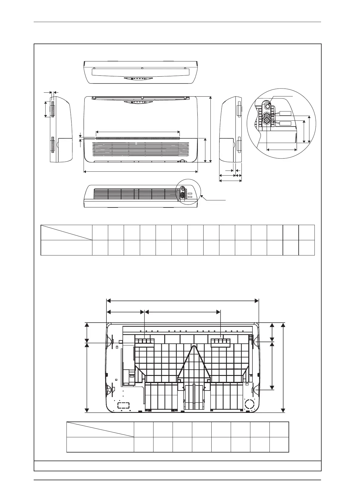
Outlines & Dimensions
133
Model: FWE05/06/07E
G
E
B
SEE DETAIL A
K
I
J
D
C
H
DRAIN PIPE
DETAIL A
L
M
A
F
N
WATER INLET
WATER OUTLET
Dimension
Model
A B C D E F G H I J K L M N
FWE05/06/07E 800 1090 230 630 20 150 20 21 156 57 213 144 107 129
Mounting Bracket
A
BC
H G
E D
F
Dimension
Model
A B C D E F G H
FWE05/06/07E 1073 534 268 135 336 630 145 485
Note: Dimension in mm

Related product manuals