EasyManua.ls Logo

Daikin FWC12C - Page 150

Daikin FWC12C
167 pages
Print Icon
To Next Page IconTo Next Page
To Next Page IconTo Next Page
To Previous Page IconTo Previous Page
To Previous Page IconTo Previous Page
Loading...
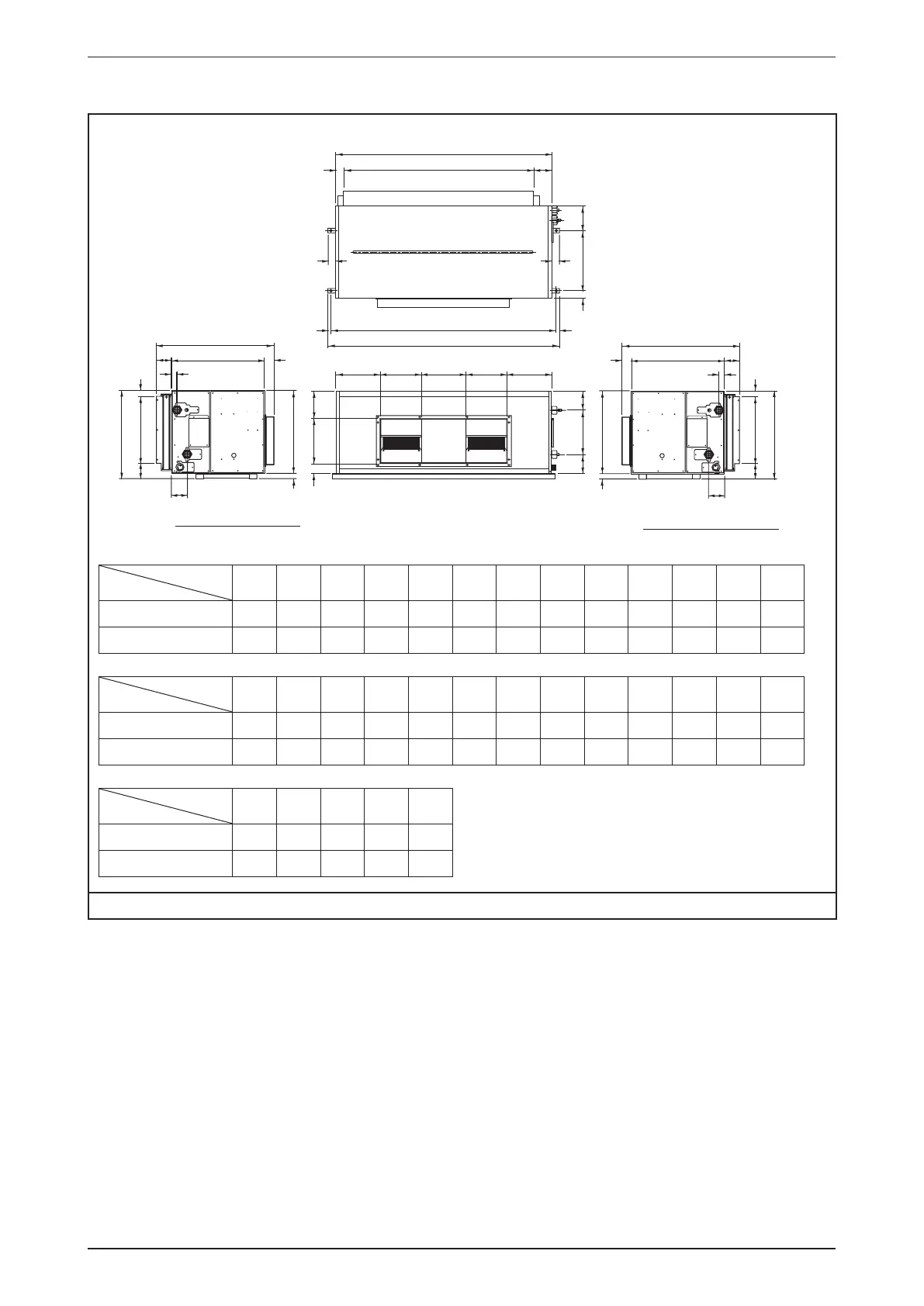
Outlines & Dimensions
146
Model: FUD20/25B
A
V
Y X W
T
Z
ZC
ZBZD
ZAZ
U
Q
O
L M N M L
S R
ZE
V
YXW
T
Z
ZC
ZB
ZD
ZAZ
U
B HE
I
F
JK
G
C
D
F
G
P
LEFT PIPING (OPTIONAL)
RIGHT PIPING (STANDARD)
NOTE:
FOR HORIZONTAL AIR DISCHARGE
Dimension
Model
A B C D E F G H I J K L M
FUD20B 1402 1232 1462 1502 53 50 20 117 163 394 48 287 270
FUD25B 1402 1232 1462 1502 53 50 20 117 163 394 48 287 270
Dimension
Model
N O P Q R S T U V W X Y Z
FUD20B 288 177 295 65 302 103 33 72 761 60 605 96 35
FUD25B 288 177 295 65 289 103 33 72 761 60 605 96 35
Dimension
Model
ZA ZB ZC ZD ZE
FUD20B 537 437 572 100 132
FUD25B 537 437 572 100 145
Note: Dimension in mm