EasyManua.ls Logo

Daikin FWK06E - Page 14

Daikin FWK06E
167 pages
Print Icon
To Next Page IconTo Next Page
To Next Page IconTo Next Page
To Previous Page IconTo Previous Page
To Previous Page IconTo Previous Page
Loading...
10
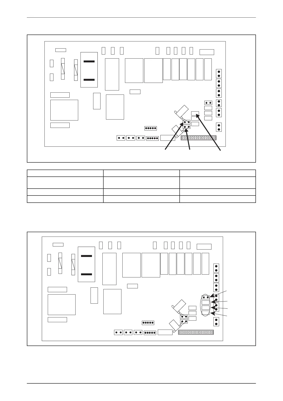
Application Information
Model: FWF/FWK/FWE/FWC-C
HTR
L
Heat Jumper Fan Priority Jumper
N2
LIVE
N1
HI
MED
LOW
CN_TW
CN_PGRM
CN_WIR
ROOM
CN_STP
C_SENH_SEN
HEAT
VALVE
CN_DSP
SHED
M4
M3
M2
M1
TFULLA_FRZ W_OPEN UNOCP
SLIENT
CVLV
HVLV
WTP
AS
CN_DRY
Valve Jumper
CO_DRAFT
Jumper With Jumper (Default) Without Jumper
Fan Priority Jumper
User set speed or lower fan if auto
mode is selected
Fan Stop when thermostat cat off
Heat Jumper For Heat pump For Cooling only
Valve Jumper For valve control For valveless control
4 pipes system controller board setting
Model : FWK-E(H) & FWKE-E(H)
Model
1
Model
2
Model
3
Model
4
HTR
L
N2
LIVE
N1
HI
MED
LOW
CN_TW
CN_PGRM
CN_WIR
ROOM
CN_STP
C_SENH_SEN
HEAT
VALVE
CN_DSP
SHED
M4
M3
M2
M1
TFULLA_FRZ W_OPEN UNOCP
SLIENT
CVLV
HVLV
WTP
AS
CN_DRY
CO_DRAFT

Related product manuals