EasyManua.ls Logo

Daikin FWK08E - Page 144

Daikin FWK08E
167 pages
Print Icon
To Next Page IconTo Next Page
To Next Page IconTo Next Page
To Previous Page IconTo Previous Page
To Previous Page IconTo Previous Page
Loading...
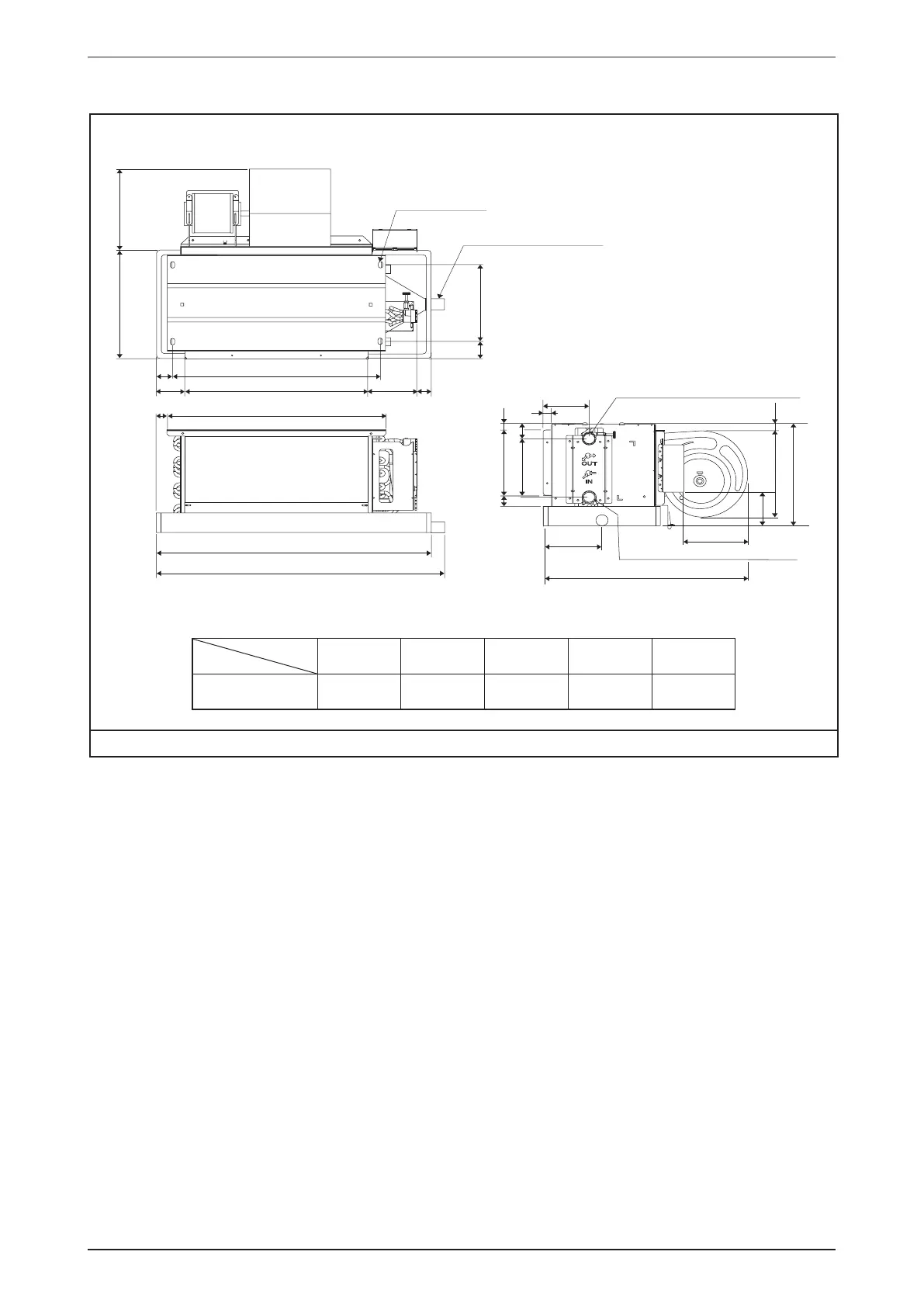
Outlines & Dimensions
140
Model: FWC02G (LSP)
OUT
IN
WATER OUT
(3/4" BSPT FEMALE THREAD ADAPTOR)
WATER IN
(3/4" BSPT FEMALE THREAD ADAPT
OR)
MOUNTING HOLE
(4 X 10.0 X 16.0)
CONDENSATE DRAIN (R3/4")
198
267
KD
KC
187
43
104
161
219
461
132
KB
KA
KE
38
66
110
18
18
16
143
27
30
82
148
251
26
38
Dimension
Model
KA KB KC KD KE
FWC02G 657 630 494 414 470
Note: Dimension in mm

Related product manuals