EasyManua.ls Logo

Daikin FWK08E - Page 151

Daikin FWK08E
167 pages
Print Icon
To Next Page IconTo Next Page
To Next Page IconTo Next Page
To Previous Page IconTo Previous Page
To Previous Page IconTo Previous Page
Loading...
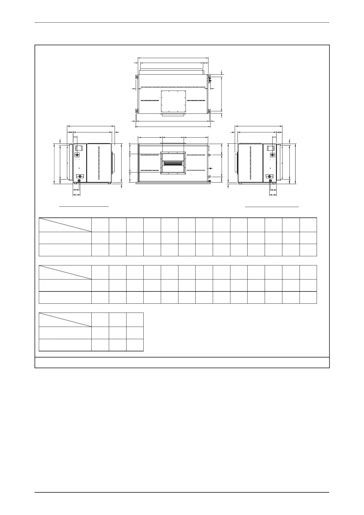
Outlines & Dimensions
147
Model: FUD30/40B (Horizontal Air Discharge)
A
X
ZA
Z Y
T
S
K
ZB
ZC
ZS
W
P N
L M L
X
Y
R Q U
ZA
Z
S
K
ZB
ZC
Z
S
B
E
H
I
F
J
G
C
D
F
G
V
O
I
T
W
V
NOTE:
FOR HORIZONTAL AIR DISCHARGE
LEFT PIPING (OPTIONAL)
RIGHT PIPING (STANDARD)
Dimension
Model
A B C D E F G H I J K L M
FUD30B 1540 1370 1600 1640 53 50 20 117 48 754 885 533 474
FUD40B 1540 1370 1600 1640 53 50 20 117 48 754 885 533 474
Dimension
Model
N O P Q R S T U V W X Y Z
FUD30B 220 408 222 468 120 35 88 262 155 132 1040 60 850
FUD40B 220 408 222 468 120 35 88 262 155 132 1040 60 850
Dimension
Model
ZA ZB ZC
FUD30B 130 747 103
FUD40B 130 747 103
Note: Dimension in mm

Related product manuals