EasyManua.ls Logo

Danby DAR026A2BDB - Page 27

Danby DAR026A2BDB
32 pages
Print Icon
To Next Page IconTo Next Page
To Next Page IconTo Next Page
To Previous Page IconTo Previous Page
To Previous Page IconTo Previous Page
Loading...
Instrucciones Operativas
INSTRUCCIONES PARA INVERTIR LA PUERTA
ADVERTENCIA
Para evitarse lesiones personales y daños a la propiedad,
recomendamos que otra persona lo ayude durante el proceso de
cambiar el sentido en que abre la puerta.
Si usted encuentra incómoda la dirección en que abre la puerta en su aparato, usted puede cambiarla siguiendo los
pasos que se muestran en los siguientes diagramas.
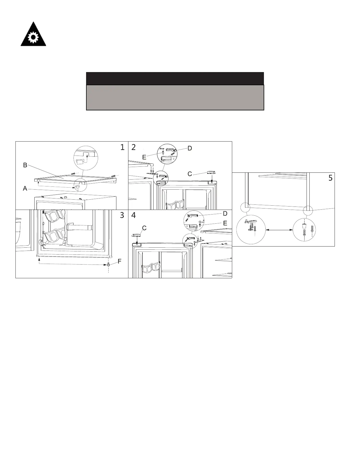
24
1. Retire los dos (2) tornillos de la parte posterior de la encimera, levante un poco la parte posterior de la encimera y
empújela hacia adelante; de esta forma, sacará la encimera. Consulte la Figura 1.
2. Retire la cubierta de la tira de la puerta izquierda o derecha (según a qué lado moverá la puerta) y la cubierta de la
bisagra izquierda o derecha. Luego, retire los dos (2) tornillos de la bisagra superior y retire la bisagra superior. Retire
el perno de la bisagra de la puerta y páselo al otro lado de la puerta. Consulte la Figura 2.
3. A oje el perno superior de la puerta y retire el ensamblaje de la puerta. Consulte la Figura 2.
4. Instale el perno superior de la puerta hacia el lado opuesto de la bisagra superior, coloque la bisagra superior en el
otro lado del gabinete, instale la cubierta de la tira de la puerta y la cubierta de la bisagra en el lado opuesto de donde
las retiró. Consulte la Figura 4.
5. A oje la pata ajustable y retire los dos (2) tornillos que la rodean. Retire los dos (2) tornillos de la bisagra inferior y
retire la bisagra inferior. Vuelva a colocar la pata y los dos (2) tornillos donde estaba la bisagra inferior. Instale la bis-
agra inferior donde estaba la pata. Consulte la Figura 5.
6. Haga los ajustes necesarios en la bisagra superior y la bisagra inferior, vuelva a instalar la encimera siguiendo los
pasos para sacarla a la inversa.

Related product manuals