EasyManua.ls Logo

Danby DAR044A6O - Page 20

Danby DAR044A6O
36 pages
Print Icon
To Next Page IconTo Next Page
To Next Page IconTo Next Page
To Previous Page IconTo Previous Page
To Previous Page IconTo Previous Page
Loading...
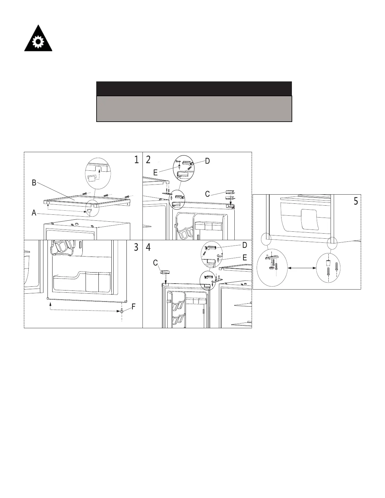
INSTRUCTIONS DE PORTE RÉVERSIBLE
Consignes d’utilisation
ATTENTION
A n d’éviter de vous blesser ou de causer des dégâts matériels,
nous vous recommandons de solliciter l’aide d’autrui lors des
manœuvres liées à l’inversion de la porte.
Si vous trouvez que la direction de l’ouverture de la porte de votre réfrigérateur est peu pratique, elle peut être changée.
Suivez les étapes décrites dans les schémas.
1. Enlevez les trois (3) vis du dos du plan de travail, levez légèrement le dos du plan de travail et tirez le plan de travail
en avant. Cela enlèvera le plan de travail. Voir la gure 1.
2. Enlevez le couvercle de la porte en bande du côté gauche ou droit (selon le côté vers lequel vous changez l’ouverture
de la porte) et le couvercle de la charnière gauche ou droit. Puis enlevez les deux (2) vis de charnière supérieures et
enlevez la charnière supérieure. Desserrez la broche de l’assemblage de porte supérieure et enlevez l’assemblage
de porte. Voir la gure 2.
3. Enlevez l’axe de la charnière de la porte et déplacez-le vers l’autre côté de la porte. Voir la gure 3.
4. Installez la broche de porte supérieure sur le côté opposé de la charnière supérieure, placez la charnière supérieure
sur l’autre côté de l’armoire. Installez le couvercle de la porte en bande et le couvercle de la charnière sur le côté
opposé du côté duquel vous les avez enlevés. Voir la gure 4.
5. Desserrez et retirez le pied réglable et enlevez les deux (2) vis autour du pied réglable. Enlevez les deux (2) vis de
la charnière inférieure et enlevez la charnière inférieure. Réinstallez le pied et les deux (2) vis dans l’endroit d’où la
charnière inférieure avait été enlevée. Installez la charnière inférieure dans l’endroit d’où le pied avait été enlevé. Voir
la gure 5.
6. Ajustez les charnières inférieure et supérieure selon besoin et réinstallez le plan de travail en reversant les pas que
vous avez suivi en l’enlever.
17

Related product manuals