EasyManua.ls Logo

Danfoss OP-MPHM026GSP00G - Page 4

Danfoss OP-MPHM026GSP00G
30 pages
Print Icon
To Next Page IconTo Next Page
To Next Page IconTo Next Page
To Previous Page IconTo Previous Page
To Previous Page IconTo Previous Page
Loading...
4 FRCC.ES.010.A4.ML
Manual Controller Installation
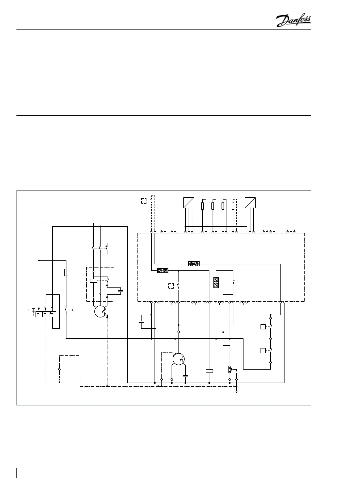
BK
BL
BR
thermostat d'ambiance
Raumthermostat
room thermostat
BK
BK
BK
BK
BK
BK
RD
WH
BK
BK
-R1 -R2
-R3 -R4
T>
PE
.
A1
A2
-K2
P
U
1 2 3
-B1
P
U
1 2 3
-B2
crankcase heater
Kurbelwannenheizung
sistance de carter
-R5
-C3
22
.
-X1
P<
-B4
15
.
-X1
P>
-B3
20
.
-X1
-C2
M
1~
fan motor
Lüftermotor
ventilateur
-M2
BR
BR
GY
GY
6
.
-X1 14
.
PE
.
-X1 N1
.
N2
.
1
2
3
5
6
10
11
12
13
14
15
16
22
23
24
25
21
22
-K2
P>
1
2
BN
BU
1
2
3
4
5
6
-K2
-C1
M
1~
Verdichter
compressor
compresseur
-M1
BN
33
34
43
44
PE
-X1
power supply
alimentation
Zuleitung
220-240V1N~/50Hz
L N PE
BU
BU
I > I > I >
1 3 5
2 4 6
-Q1
3,15A
-F1
13
14
11
13
10
12
-K1
*Option
-B5
*Option: A fan pressure switch or fan speed controller can be connected in series to wire n°6
Il est possible de raccorder en série un pressostat ou un contrôleur de vitesse pour le ventilateur au l 6.
An die Ader n°6 kann ein Lüfterdruckschalter oder ein Lüfterdrehzahlregler in Reihe geschaltet werden.
* Valgfrit: En ventilatortrykkontakt eller ventilatorhastighedsregulator kan serieforbindes til ledning nr. 6
Optyma Plus™ Verüssigungssätze sind vorparametriert für das installierte Verdichtermodell und verwendete
Kältemittel. Im Fall eines Verdichters für mehrere Kältemittel (z.B. MTZ oder MLZ) ist der Reglerparameter
o30 für das Kältemittel auf „R404A“ eingestellt. Der Parameter muss für andere Kältemittel geändert
werden (siehe Kapitel zu Inbetriebnahme – Schnellstart der Einheit/Kältemittelwechsel).
Anhang
Les groupes de condensation Optyma Plus™ sont pré-paramétrés, en fonction du modèle de compresseur
et du type de réfrigérant. Dans le cas d’un compresseur «multi-réfrigérants» (p. ex. les modèles MTZ ou
MLZ),
le paramètre du contrôleur «o30» pour le réfrigérant est déni sur R404A et doit être modié en
cas d’utilisation d’un réfrigérant diérent (voir le chapitre Mise en service - Démarrage rapide de l’unité
/ Changement de réfrigérant).
Annexe
Optyma Plus™-kondenseringsaggregater er parameterafstemt på forhånd afhængigt af den monterede
kompressormodel og kølemiddeltypen. I tilfælde af en kompressor til ere kølemidler (f.eks. MTZ eller
MLZ) er regulatorparameteren ”o30” indstillet til f.eks. R404A og skal ændres ved anvendelse af andre
kølemidler (se kapitlet Idriftsættelse – hurtig start af enheden/kølemiddelskift).
Supplement

Table of Contents

Related product manuals