EasyManua.ls Logo

Dantherm CDT 35 - Page 37

Dantherm CDT 35
Print Icon
To Next Page IconTo Next Page
To Next Page IconTo Next Page
To Previous Page IconTo Previous Page
To Previous Page IconTo Previous Page
Loading...
35
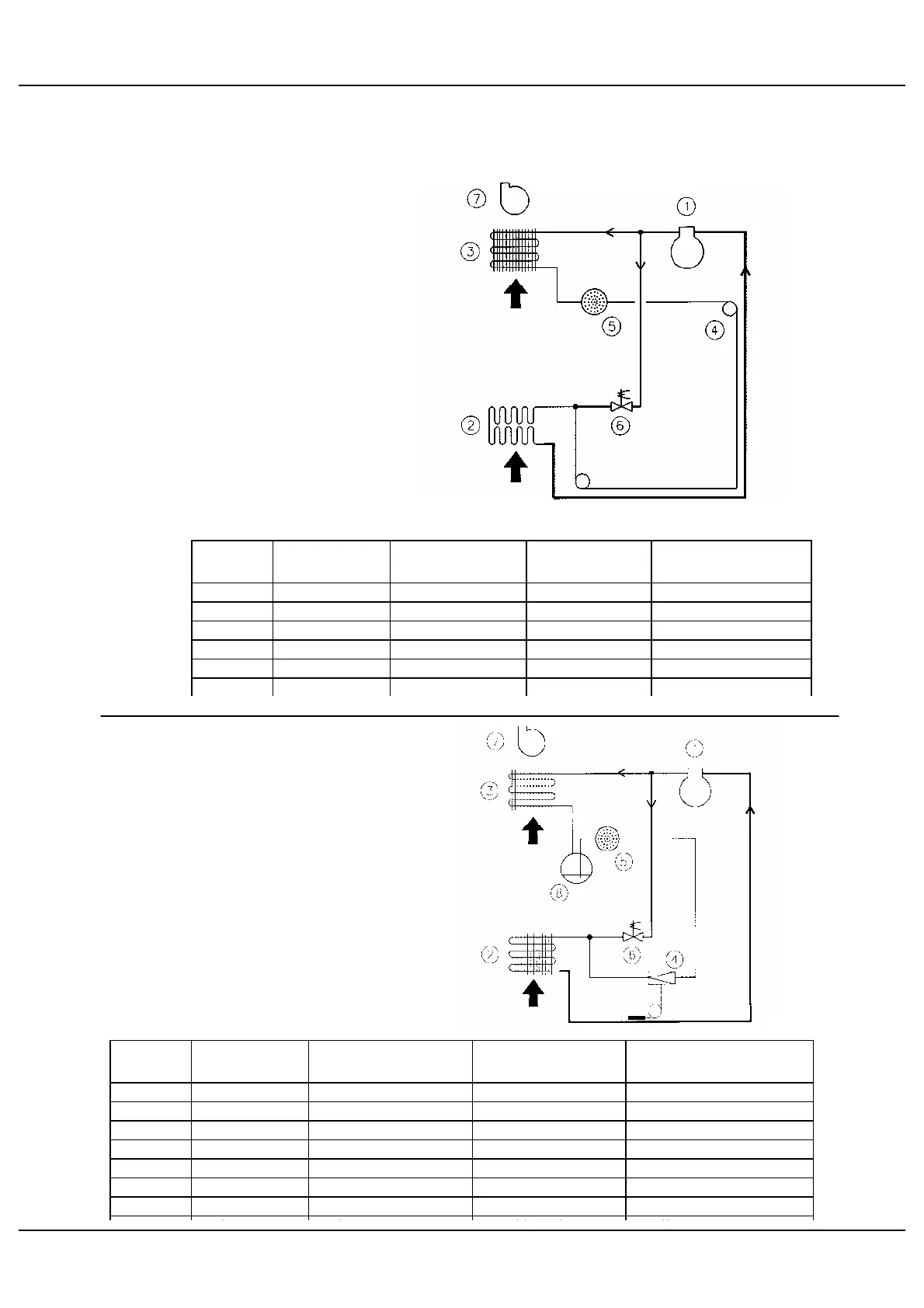
CDT 22 – CDT 35 – CDT 35S – CDT 50
Kølekredsløb / Cooling circuit / Kältekreislauf / Circuit frigorifique
CDT 85
Position
Beskrivelse Designation Beschreibung Désignation
1 Kompressor Compressor Kompressor Compresseur
2 Fordamper Evaporator Verdampfer Evaporateur
3 Kondensator Condensor Kondensator Condenseur
4 Kapillarrør Capillary tube Kapillarrohr Tubes capillaires
5 Tørrefilter Liquid line drier Trockenfilter Filtre anti humidité
6 Magnetventil Solenoid valve Magnetventil Vanne solénoide
Position
Beskrivelse Designation Beschreibung Désignation
1 Kompressor Compressor Kompressor Compresseur
2 Fordamper Evaporator Verdampfer Evaporateur
3 Kondensator Condensor Kondensator Condenseur
4 Termoventil Thermostatic valve Thermoventil Clapet thermostatique
5 Tørrefilter Liquid line drier Trockenfilter Filtre anti humidité
6 Magnetventil Solenoid valve Magnetventil Vanne solénoide
7 Ventilator Fan Ventilator Ventilateur
i
i
kk l

Table of Contents

Related product manuals