EasyManua.ls Logo

DCS RD 484 GG - RD48 Wiring Diagram

DCS RD 484 GG
38 pages
Print Icon
To Next Page IconTo Next Page
To Next Page IconTo Next Page
To Previous Page IconTo Previous Page
To Previous Page IconTo Previous Page
Loading...
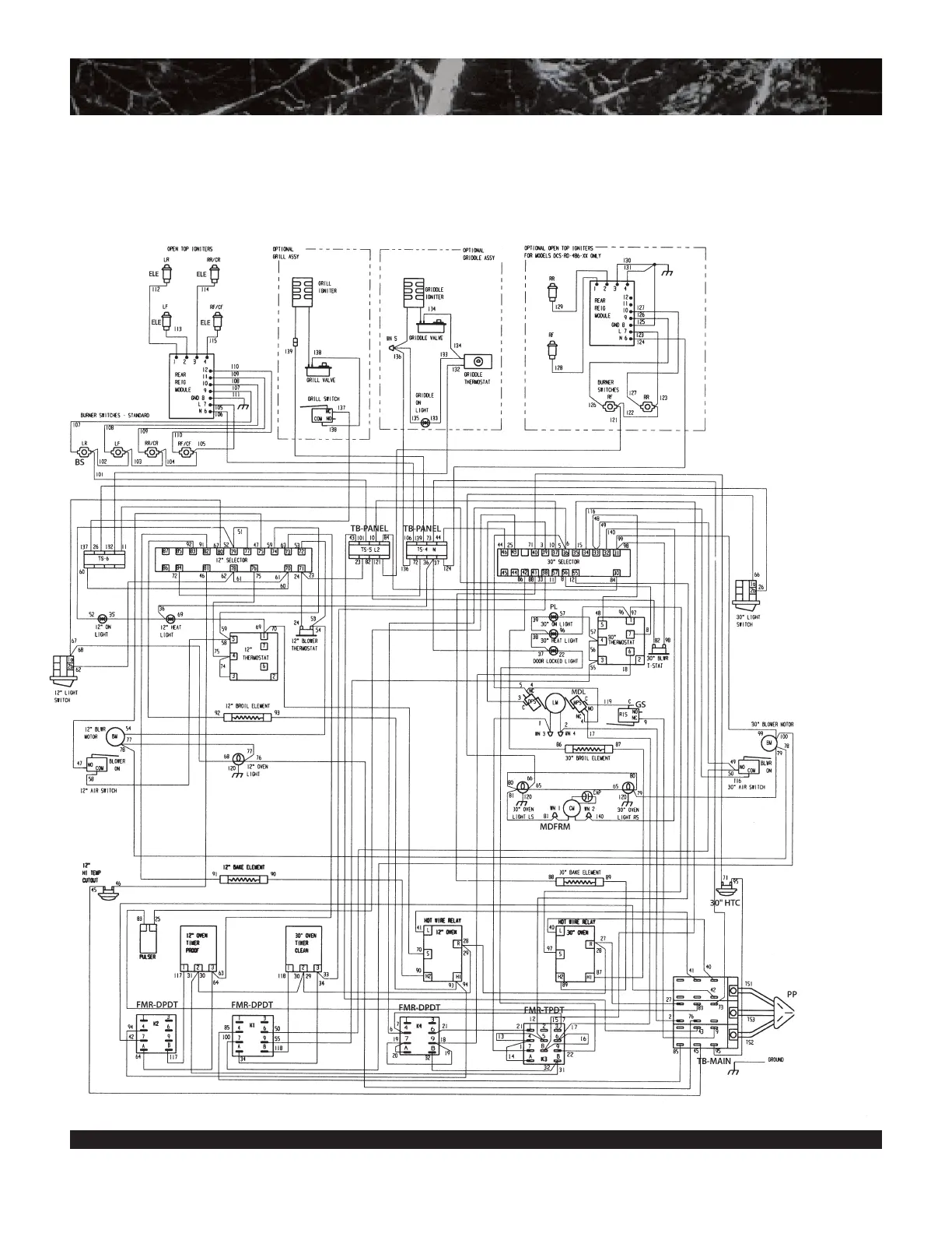
RD48 WIRING DIAGRAM
31
NOTES: (many of the parts have the name of the part instead of the
abbreviation)
AIS = AIR INTERLOCK SWITCH (16038)
BK-12 = BAKE ELEMENT 12 (16027-2)
BK-30 = BAKE ELEMENT 30 (16030-2)
BM = BLOWER MOTOR (50166)
BLT = BLOWER THERMOSTAT (16041)
BR-12 = BROIL ELEMENT 12 OVEN (16029-2)
BR-30 = BROIL ELEMENT 30 (16028-2)
BS = BURNER SWITCHES (13071)
CF = CENTER FRONT
CM = CONVECTION MOTOR
CR = CENTER REAR
CT = CLEAN TIMER (16044-2)
DPS = COOR POSTION SWITCH
ELE = ELECTRODE (12093)
FMR-DPDT = FLANGE MOUNT RELAY DPDT (16045-2)
FMR-TPDT = FLANGE MOUNT RELAY TPDT (16045-3)
GV = GRIDDLE & GRILL VALVE (13073)
GT = GRIDDLE THERMOSTAT (13310)
GS = GRILL SWITCH (16001)
HTC = HI-TEMP CUT-OUT (13043)
HWR = HOT WIRE RELAY (13039)
IGN = IGNITER (SMALL) (16009-1)
K1 = CLEAN REALY DPDT
K2 = PROOF RELAY DPDT
K4 = LATCH OPEN RELAY DPDT
LM = LATCH MOTOR, DOOR
LS = LIGHT SWITCH (16127)
MDFRM = MOTOR DUAL FUEL RD MODEL(16147)
MDL = MOTORIZED DOOR LOCK (16031)
MPS = MOTOR POSITION SWITCH
OL = OVEN LIGHT (16242)
PL = PILOT LIGHT (16046-02)
PLSR = PULSER 50% (13038)
PT = PROOF TIMER (16044-1)
PP = PRONG PLUG 50A (16212)
RF = RIGHT FRONT
RIS = RACK INTERLOCK SWITCH
RR = RIGHT REAR
RRM = REAR REIG MODULE (13236)
S-12 = SELECTOR 12” (16032-2)
S-30 = SELECTOR 30” (16032-1)
TB-MAIN = TERMINAL BLOCK – MAIN (16049)
TB-PANEL = TERMINAL BLOCK – PANEL (16006)
T-STAT = THERMOSTAT KS-HT (16032-2)

Related product manuals