EasyManua.ls Logo

Defensor Mk4 - Page 29

Defensor Mk4
Print Icon
To Next Page IconTo Next Page
To Next Page IconTo Next Page
To Previous Page IconTo Previous Page
To Previous Page IconTo Previous Page
Loading...
29
Defensor Mk4
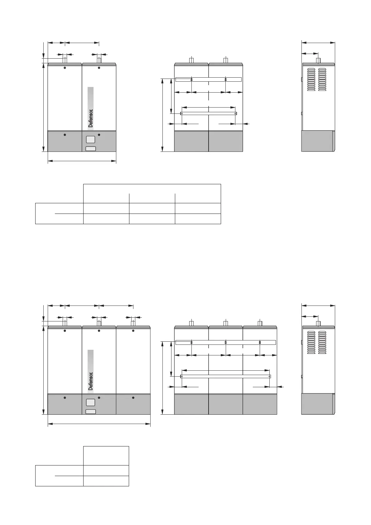
ST 40-../IT 40-.. ST 50-../IT 50-.. ST 60-../IT 60-..
Poids de servcie 89 kg 90 kg 91 kg
net 55 kg 56 kg 57 kg
Defensor Mk4
ST 90-../IT 90-..
Poids de service 137 kg
net 86 kg
Mk4
53.5
354
G 1
1
/
4
" G 1
1
/
4
"
79.5 79.5
179.5 179.5
359
559
179.5
929
764
718
359
365
181
Mk4
53.5
354
G 1
1
/
4
" G 1
1
/
4
" G 1
1
/
4
"
79.5 79.5
179.5 179.5
918
359 359
179.5
929
764
1077
359 359
365
181

Related product manuals