EasyManua.ls Logo

Defy DGS902 - Page 28

Defy DGS902
47 pages
Print Icon
To Next Page IconTo Next Page
To Next Page IconTo Next Page
To Previous Page IconTo Previous Page
To Previous Page IconTo Previous Page
Loading...
28
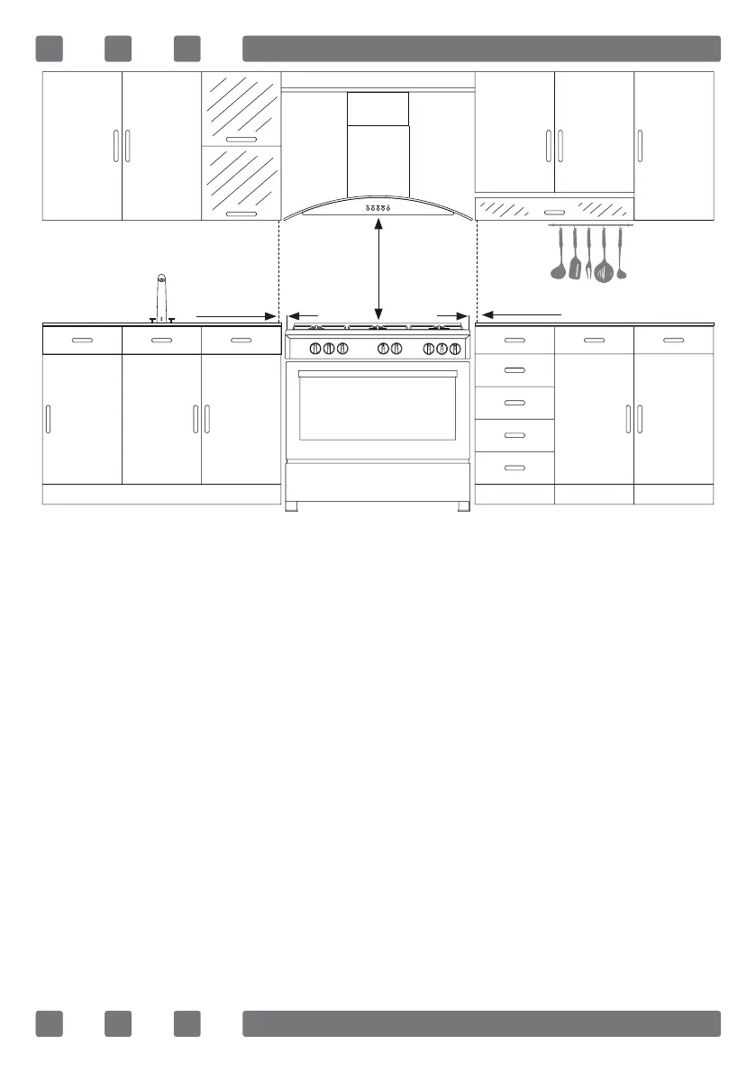
WARNING: The kitchen furniture near the appliance must be heat
resistant.
WARNING: Do not use the door and/or handle to carry or move the appliance.
WARNING: Do not install the appliance beside refrigerators or coolers.
Heat radiated by the appliance increases the energy consumption of cooling
devices.
650mm min.
65 mm min.
65 mm min.

Related product manuals