EasyManua.ls Logo

Dettson HYDRA20-E2401M-C - Page 11

Default Icon
14 pages
Print Icon
To Next Page IconTo Next Page
To Next Page IconTo Next Page
To Previous Page IconTo Previous Page
To Previous Page IconTo Previous Page
Loading...
12
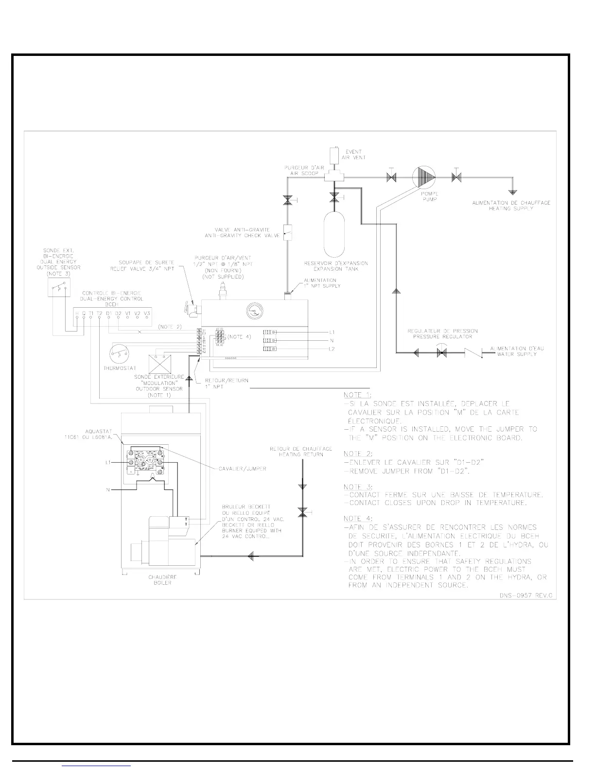
FIGURE 5
Typical Diagram of a Dual-Energy Installation without 3-way Valve

Related product manuals