EasyManua.ls Logo

DeWalt DE7025 - Page 13

DeWalt DE7025
82 pages
Go to English
To Next Page IconTo Next Page
To Next Page IconTo Next Page
To Previous Page IconTo Previous Page
To Previous Page IconTo Previous Page
Loading...
DEUTSCH
11
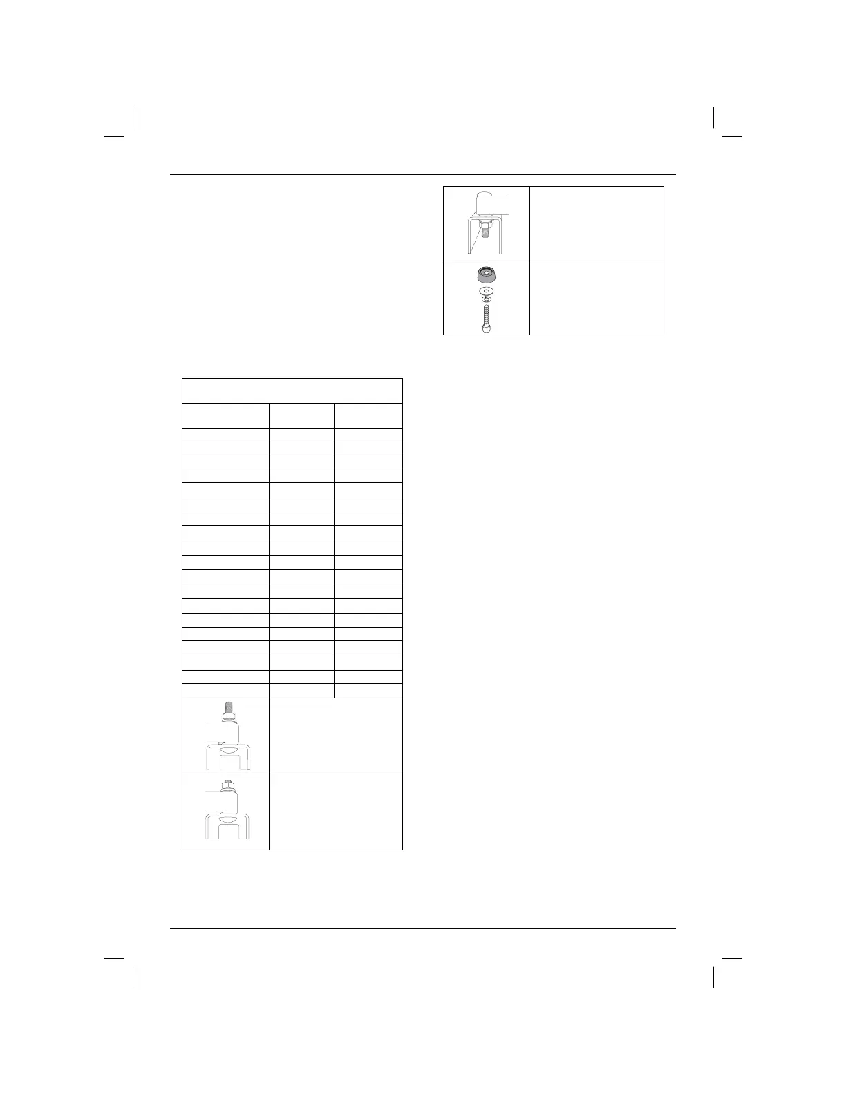
2. Legen Sie einen Abstandshalter unter eine Seite
der Gehrungssäge, um die Montagefüße der
Säge oberhalb der Arbeitsoberfläche zu halten.
3. Halten Sie eine Befestigungshalterung(a)
unter die Säge und schieben Sie eine
Schlossschraube (Tüte mit Befestigungsteilen)
nach oben durch die Halterung und den
Sägefuß.
HINWEIS: Siehe DE7025 Auswahltabelle für
Befestigungsteile zur korrekten Auswahl von
Befestigungsteilen für D
EWALT-Gehrungssägen.
Befolgen Sie alle Anweisungen genauestens,
da sonst die Rotation des Sägetischs behindert
wird.
DE7025 AUSWAHLTABELLE FÜR
BEFESTIGUNGSTEILE
Linke
Seite
Rechte
Seite
DW703 1 1
DW705 1 1
DW706 1 1
DW708 1 2
DW712 1 2
DW713 1 1
DW715 1 1
DW716 1 1
DW717 2 1
DW718 3 2
DW700 4 4
DW701 Typ 1 4 4
DW701 Typ 2 1 1
DW707 Typ 1 4 4
DW707 Typ 2 1 1
DW711 Typ 1 4 4
DW711 Typ 2 1 1
DW771 1 1
DW777 1 1
1 = Lange Schraube, Kopf
unten
2 = Kurze Schraube, Kopf
unten
3 = Lange Schraube, Kopf
oben
4 = Kunststoffscheibe und
kurze Schraube, Kopf
unten
4. Wenn die Schlossschraube (Tüte mit
Befestigungsteilen) gemäß der DE7025
Auswahltabelle für Befestigungsteile
montiert wurde, bringen Sie eine
Unterlegscheibe, einen Sicherungsring und
eine Mutter an der Schraube an. Ziehen Sie die
Schrauben handfest an.
5. Wiederholen Sie diesen Vorgang am anderen
Ende der Halterung.
6. Schieben Sie den Abstandshalter zur anderen
Seite der Säge, um ihr anderes Ende für den
Zugriff auf den Sägenfuß oben zu halten.
7. Führen Sie die Schlossschrauben wie zuvor
durch die andere Halterung und den Sägenfuß.
Die beiden Halterungen müssen parallel sein.
8. Um die Säge auf das Gestell zu setzen,
heben Sie sie an den Freigabehebeln an der
Befestigungshalterung an. Diese Hebel sichern
die Säge nicht seitlich sondern dienen nur dazu,
die Säge am Träger zu befestigen.
9. Bringen Sie den Träger mit der Säge/
Halterung in Übereinstimmung, indem Sie
letztere etwas gegen Ihren Körper kippen.
Drücken Sie auf die konkave vordere Lippe der
Befestigungshalterung mit der abgerundeten
Trägerkante. An einer der Halterungen muss
der Positionierungsclip (d) einrasten, um eine
seitliche Bewegung der Säge während der
Verwendung zu verhindern.
10. Wenn die vordere Kante des Trägers und
der Positionierungsclip eingerastet sind,
ermöglicht ein leichtes Abwärtskippen das
sichere Einrasten der Freigabehebel am hinteren
Trägerende. Bewegen Sie die Säge vorsichtig
auf den Halterungen hin und her, um den
sicheren Sitz zu überprüfen.
11. Passen Sie die Sägeposition gegebenenfalls an,
damit das Sägeblatt senkrecht auf dem Träger
steht, wenn es sich in der Gehrungsposition von
0-Grad befindet.