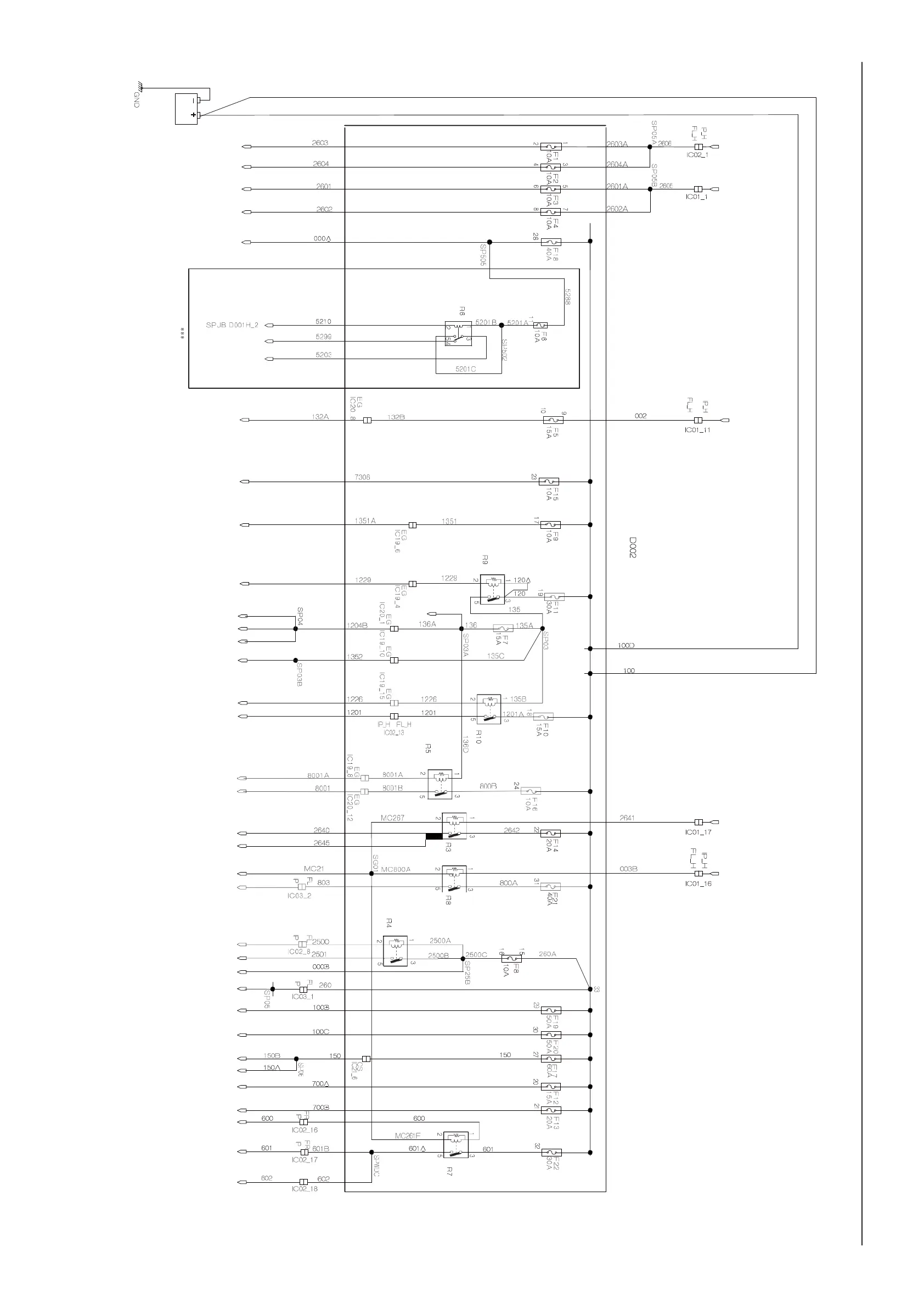
Electrical diagram of engine compartment power distribution
Engine compartment fuse box
Red
relay
relay
White
Front fog
lamp relay
A/C
relay
relay
A/C
relay
Horn
relay
For rear wiper
Battery
Headlamp high beam (LH)
Headlamp high beam (RH)
White
White
Green Pink
Headlamp switch – high beam
Green
Headlamp low beam (LH)
Headlamp low beam (RH)
Ignition switch (Start/Service/Accessories)
Rear wiper D501A_1
Grey
Grey
White
White
Grey
Red
Red
Yellow
Red
Pink
Headlamp switch – low beam
Rear wiper D501A_2
Red
Red
ECU (13)
Parking lamp switch
ECU (12)
Green
White
White
Green
White
Yellow
Ignition switch - APC
Inertia switch
Yellow
Blue
ECU (44, 45 & 63)
Fuel nozzle, canister valve
Vehicle speed sensor (MT)
Oxygen sensor, ignition coil
ECU (70)
Fuel pump
Yellow
White
Yellow
White
Cooling fan
White
White
Yellow
White
White
White
White
ECU (69)
Yellow
Yellow
Green
A/C compressor
Green Grey
Front fog lamp (LH)
Front fog lamp (RH)
Ground (G21)
A/C blower motor
Horn switch
T
reble
Ignition switch (KK)
Headlamp switch
Cabin fuse box (battery)
Cabin fuse box (battery)
Cooling fan power supply - high speed
Cooling fan power supply - low speed
ABS power supply (solenoid valve)
ABS power supply (oil pump)
Cabin fuse box (D001C-3)
Left front door
Right front door
Brown
Pink
Red
Red
Red
Green
&
Y
ellow
Red
Blue
Y
ellow
Y
ellow
White
Black
Black
Pink
Yellow
Pink
Red
Green &
Y
ellow
Green
&
Y
ellow
Brown
Green
&
Y
ellow
Red
Yellow
Yellow
Yellow
Red
Green
Red
Black
White
Green
White
Front fog lamp switch
Ignition switch (kk)