EasyManua.ls Logo

DongFeng S30 - Page 16

DongFeng S30
302 pages
Print Icon
To Next Page IconTo Next Page
To Next Page IconTo Next Page
To Previous Page IconTo Previous Page
To Previous Page IconTo Previous Page
Loading...
Circuit Diagrams of Electrical Appliances
21-182
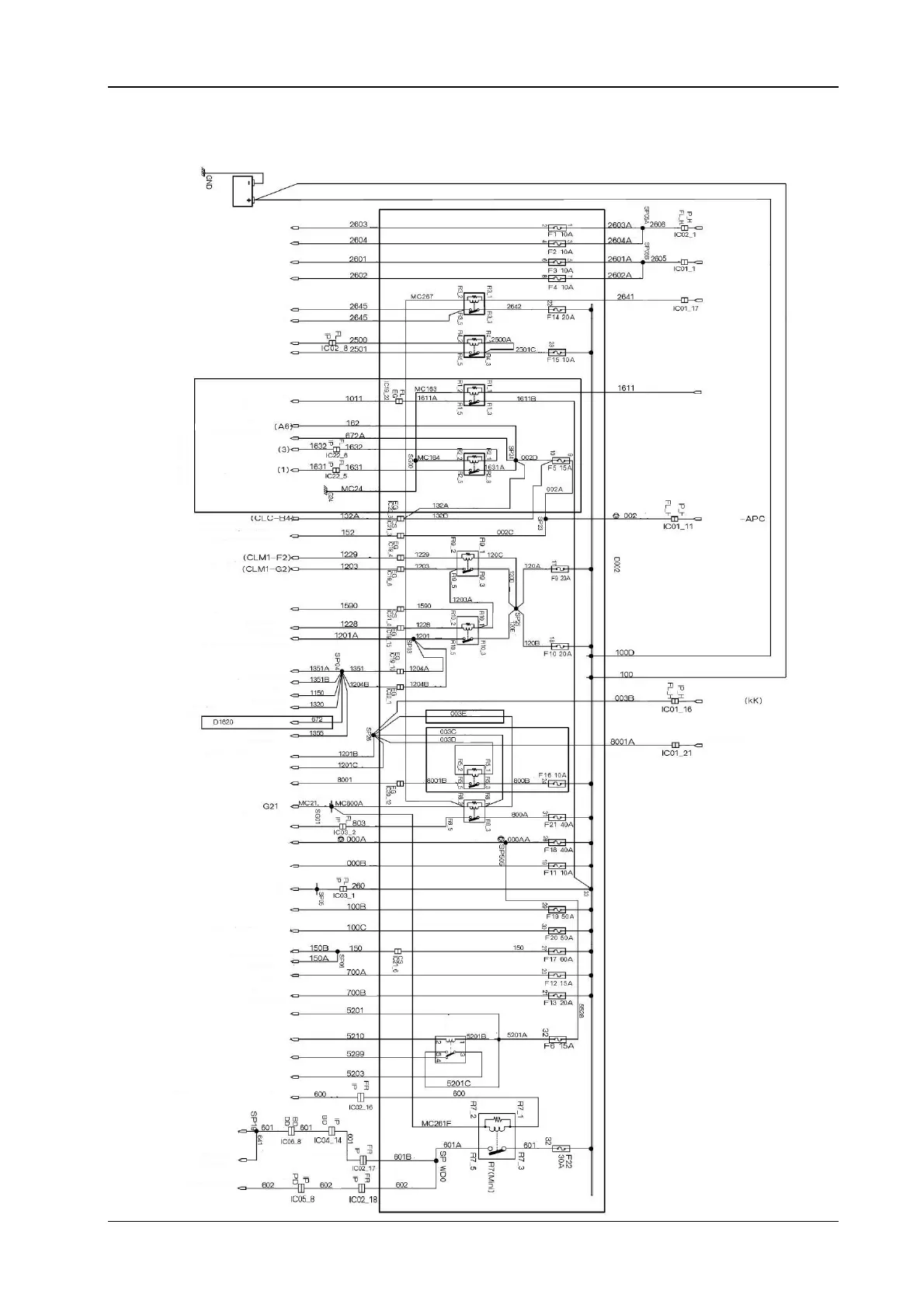
27.3 The electrical schematic diagram for the engine compartment power source distribution
H30
White
White
Grey
Grey
Red
Red
Blue
Yellow
Battery
The head light upper bream - left
The head light upper bream - right
The head light dipped bream - left
The head light dipped bream- right
The front fog light switch-left
The front fog light switch-right
The horn switch
The high frequency horn
Yellow
Pink
Grey
Grey
Green
Yellow
Green
The starter moto
r
Automatic transmission control
module
The vehicle speed sensor
The transmission shift lock
The transmission shift lock
*** It is used for automatic transmission
Green
Green
Blue
Engine computer electric power source
The cooling fan relay high speed
Engine compute
r
Engine compute
r
The cooling fan relay low speed
Red
Green
The inertia switch
Cabin fuse box (the fuel pump)
White
Yellow
The front oxygen sensor
The rear oxygen sensor
Ignition coil
The fuel jet
Use manual operated transmission
The vehicle speed sensor
The carbon tank valve
Yellow
Yellow
Green
Air conditioning pressure
switch
(
medium volta
g
e
)
Air conditioning pressure switch
hi
g
h volta
g
e/low volta
g
e
)
The air compressor
Earthing
Air conditioning blower moto
r
The ignition switch (start/operation/components)
Green
yellow
Red
White
Red
White
Black
Black
Pink
Yellow
The ignition switch (ignition)
The head light switch
Cabin fuse box (battery electric source)
Cabin fuse box (battery electric source)
The cooling fan relay high speed
The cooling fan relay low speed
ABS power source(electro magnetic valve)
ABS power source(oil pump)
The back wind shield wipe
r
Cabin fuse box
The back wind shield wipe
r
The back wind shield wipe
r
Cabin fuse box (the left back window relay)
Brown
White
Grey
Red
Yellow
Pink
Pink
Red
Brown
The driver main switch
(Electric door and window)
The rear view mirror switch
The right front electric window switch
Pink
Green
Green
Green
Green
Yellow
Pink
Red
The front head light
switch-the upper beam
The front head light
switch-the dipped beam
The front fog switch
The gear selection
switch
Pink
Blue
Brown
Green
Green
yellow
Green
yellow
Green
The starter
relay
The horn
relay
The front
fog light
relay
Yellow
*** It is used for manual operated air conditioning
Blue
The ignition
switch
Red
Green
Green
Green
Grey
Grey
Grey
Blue
Blue
Green
Green
Blue
Engine
relay
Engine
relay
Blue
Red
Grey
Engine fuse box
Yellow
The ignition switch
Green
yellow
Brown
Pink
Yellow
The transmission
shift lock relay
A
ir conditioning
blower relay
Red
Green
Grey
*** It is used for automatic
air conditioning
Yellow
Yellow
The air
compressor
realy
Red
A
utomatic air conditioning module
White
Black
Pink
Red
Yellow
Green
yellow
Red
The front
window relay
Yellow
Red
Red
Red
The back wind
shield wipe
r