EasyManua.ls Logo

Drolet HT-2000 - Page 31

Drolet HT-2000
55 pages
Print Icon
To Next Page IconTo Next Page
To Next Page IconTo Next Page
To Previous Page IconTo Previous Page
To Previous Page IconTo Previous Page
Loading...
HT-2000 Installation and Operation Manual
31
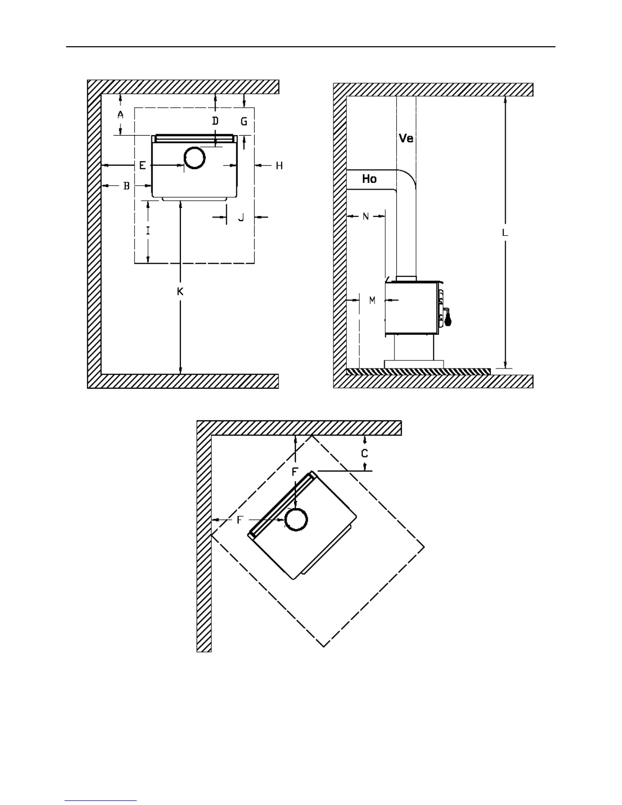
Clearances to combustible materials and floor protection

Table of Contents

Related product manuals