EasyManua.ls Logo

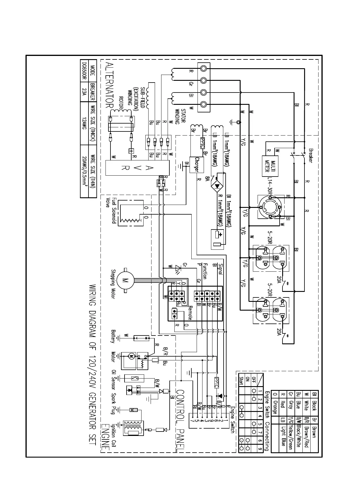
Ducar DG11050E - Wiring Diagrams: 120 V;240 V Remote Set; 120 V;240 V Generator Set Wiring Diagram (Remote)

Default Icon
25 pages
Print Icon
To Next Page IconTo Next Page
To Next Page IconTo Next Page
To Previous Page IconTo Previous Page
To Previous Page IconTo Previous Page
Loading...
Remote Start schematic diagram
23

Related product manuals