EasyManua.ls Logo

Ecomiser SR-02 - Page 9

Ecomiser SR-02
24 pages
Print Icon
To Next Page IconTo Next Page
To Next Page IconTo Next Page
To Previous Page IconTo Previous Page
To Previous Page IconTo Previous Page
Loading...
NOTE
In some cases, local codes dictate that water supply connections be made only by a certified
professional.
- Check that iron or other metal particles cannot contaminate the fresh water supplied to the machine.
- Check that the incoming water pressure is within the acceptable range for the machine (
10-40
psi,
0.6-2.7
bars). It may be necessary to reduce the pressure.
- Check the incoming water temperature. Colder water will result in a longer preheat time (during
initial startup) and may extend the cycle time to allow the final rinse water to heat to minimum
180
°
F/82
°
C
.
- Check the incoming water hardness. The Ecomiser SR-02 / SR-03 Models require a hardness of
4
grains per U.S. gallon or less. Over
4
grains the water should be treated.
- Note damage caused by scaling due to hard water is not covered under warranty.
- When connecting the customer-supplied water line to the fitting on the end of the hose supplied, pay
attention to prevent from the hose being twisted or broken.
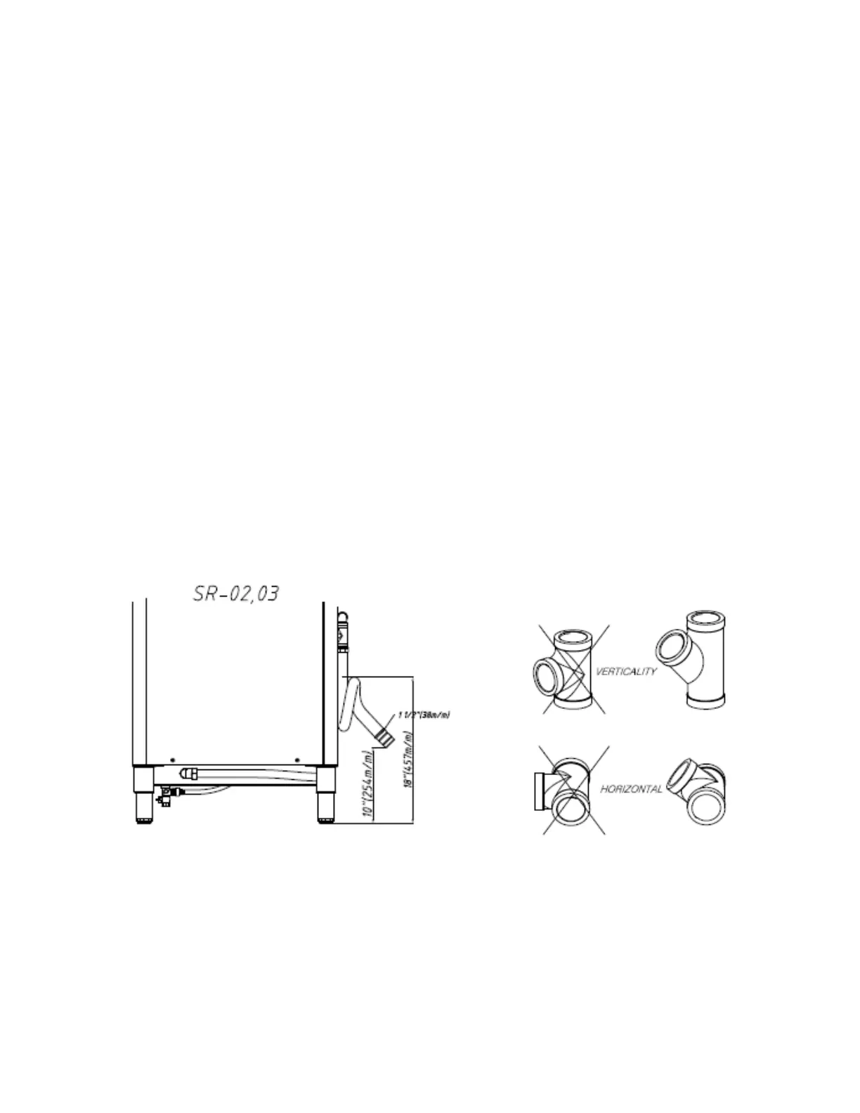
3. DRAIN CONNECTIONS
- The Ecomiser SR-02 / SR-03 models contain a
1 1/2
(38mm OD)
drain hose for the end users
convenience.
-
The Ecomiser SR-02 / SR-03 models are factory built with a drain pump. Recommended rough in
height is maximum
18
(457mm)
.
- Check that the end of the drain hose will empty into a drain with a minimum diameter of
1-1/2
(38mm)
.
- Route the drain hose to the drain. In some cases, a grease trap (supplied by others) must be fitted
into the waste water line. If this trap is required for your installation, check that it is present.
Figure 1-3 Drain connection
NOTE
- No portion of a wall drain system may be higher than
18
(457mm)
.
- No part of the drain hose should be higher than
20
(508mm)
from the bottom of the dishwasher.
- Failure to provide the proper drain connection height
(maximum of 20
(508mm))
above the bottom of
the dishwasher base) will result in improper drainage.
- After connecting the drain hose to main drain line, make sure all connections are water tight.
Ecomiser SR-02 / SR-03 Manual 9/24 Page Rev.06

Related product manuals