EasyManua.ls Logo

Edwards GXS 250/2600 - Gxs250;2600; Figure 28 GXS250;2600 Installation Drawing (Sheet 1)

Edwards GXS 250/2600
180 pages
To Next Page IconTo Next Page
To Next Page IconTo Next Page
To Previous Page IconTo Previous Page
To Previous Page IconTo Previous Page
Loading...
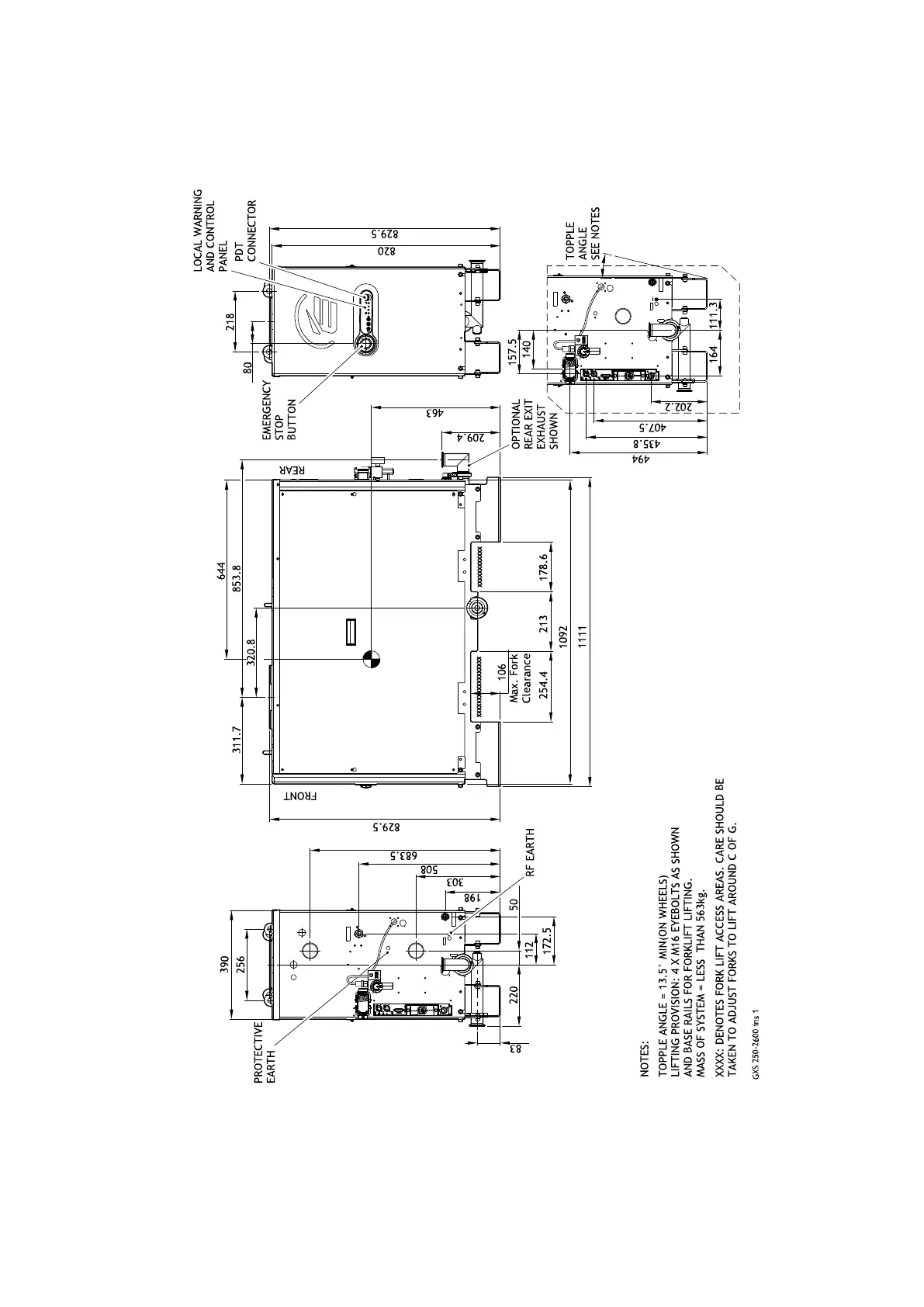
8.4 GXS250/2600
Figure 28 GXS250/2600 installaon drawing (Sheet 1)
CS/5336/A
Page 92
M58800880_H - Installaon drawings

Table of Contents

Related product manuals