EasyManua.ls Logo

Edwards GXS 450/2600 - Gxs750;4200; Figure 52 GXS750;4200 Installation Drawing (Sheet 1)

Edwards GXS 450/2600
180 pages
To Next Page IconTo Next Page
To Next Page IconTo Next Page
To Previous Page IconTo Previous Page
To Previous Page IconTo Previous Page
Loading...
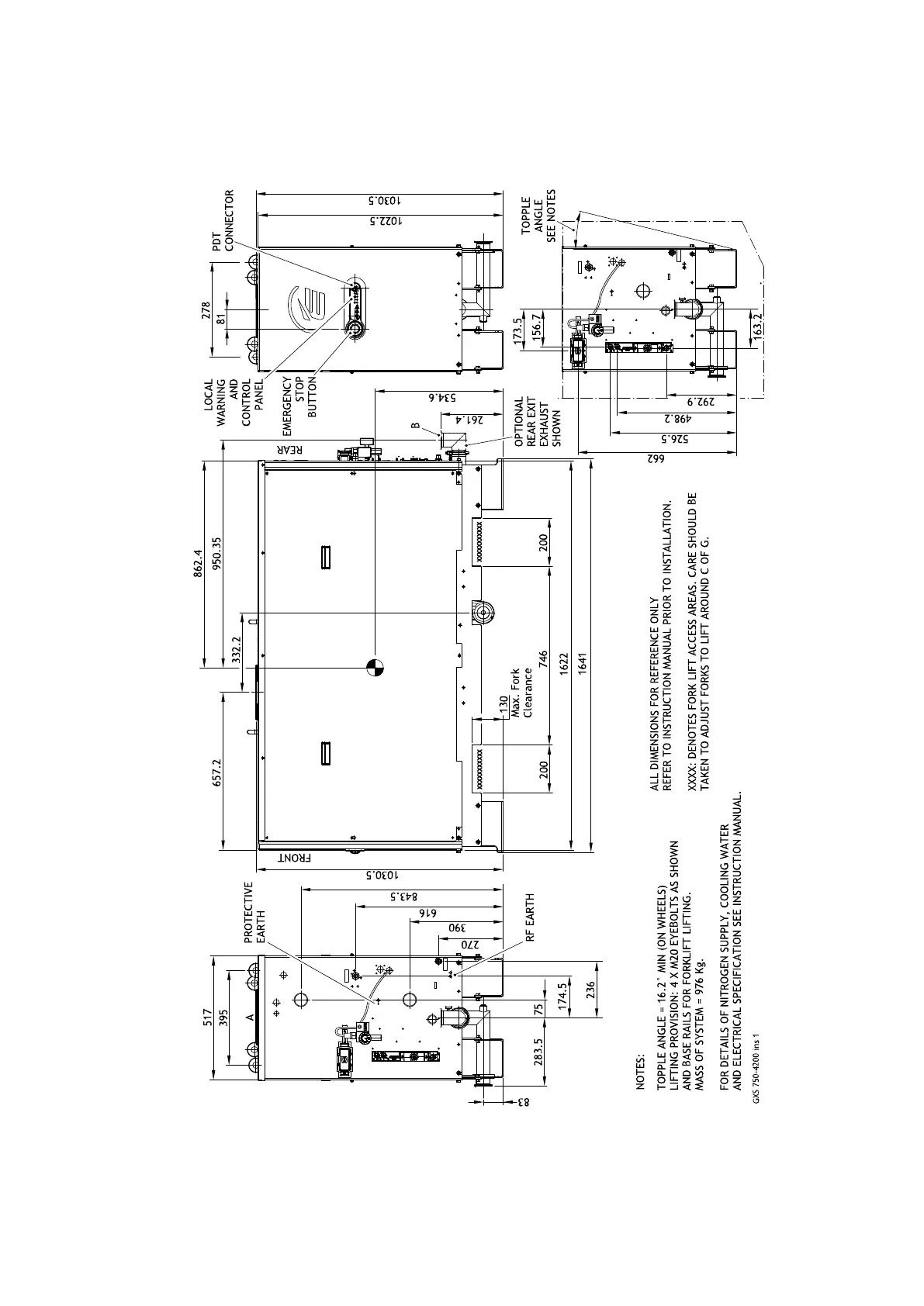
8.10 GXS750/4200
Figure 52 GXS750/4200 installaon drawing (Sheet 1)
CS/5273/A
Page 116
M58800880_H - Installaon drawings

Table of Contents

Related product manuals