EasyManua.ls Logo

Edwards GXS 450/2600 - Installation Drawings; Gxs160; Figure 16 GXS160 Installation Drawing (Sheet 1)

Edwards GXS 450/2600
180 pages
To Next Page IconTo Next Page
To Next Page IconTo Next Page
To Previous Page IconTo Previous Page
To Previous Page IconTo Previous Page
Loading...
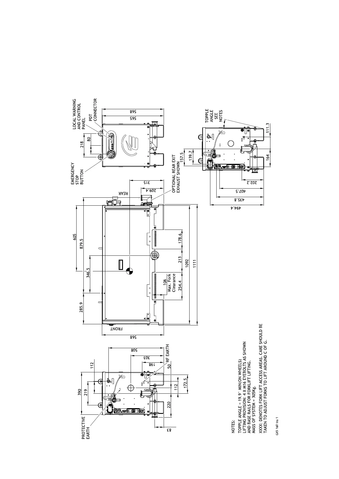
8. Installaon drawings
8.1 GXS160
Figure 16 GXS160 installaon drawing (Sheet 1)
CS/5333/A
Page 80
M58800880_H - Installaon drawings

Table of Contents

Related product manuals