EasyManua.ls Logo

EINHELL BT-LS 44 - Page 30

EINHELL BT-LS 44
Print Icon
To Next Page IconTo Next Page
To Next Page IconTo Next Page
To Previous Page IconTo Previous Page
To Previous Page IconTo Previous Page
Loading...
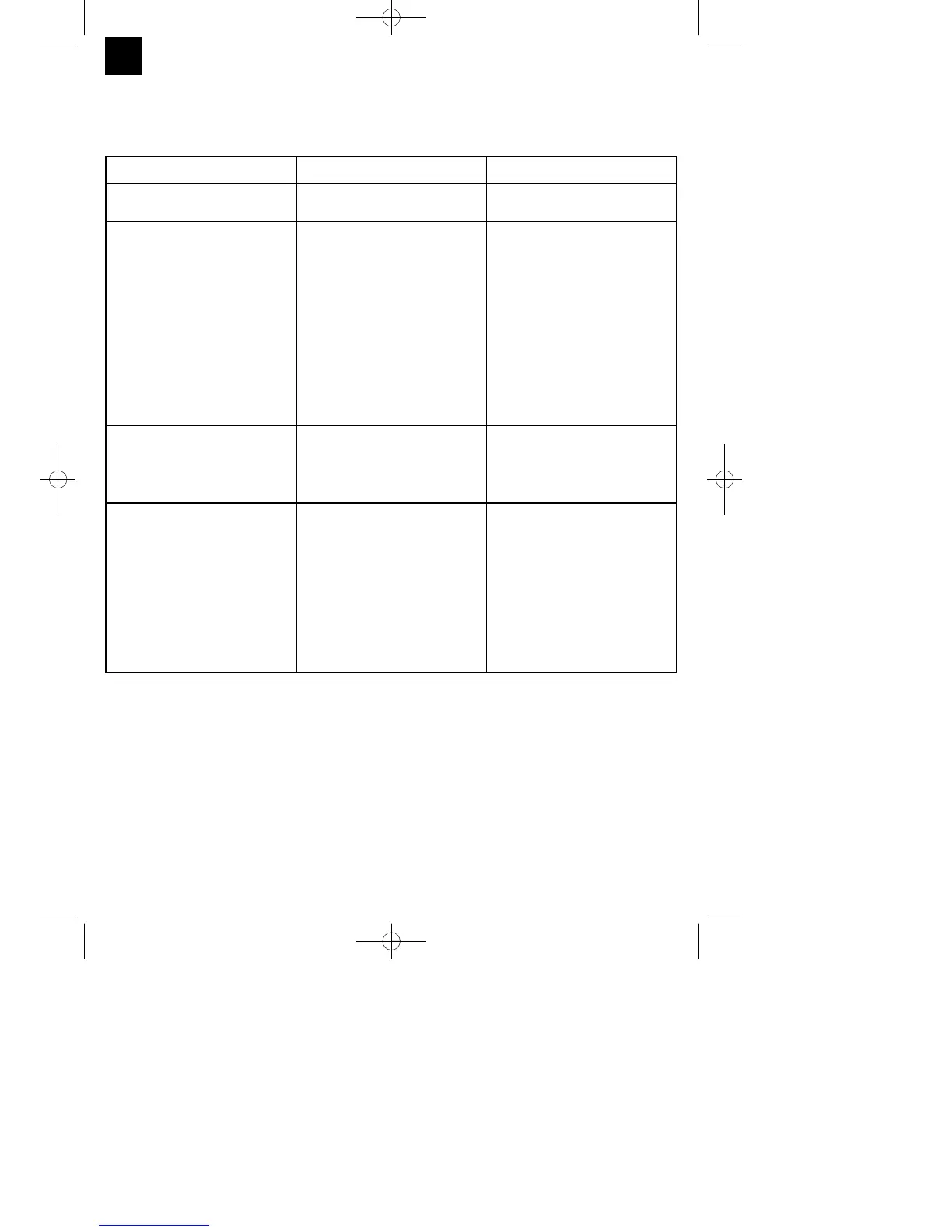
10.Ricerca degli errori
Nella seguente tabella sono elencati dei problemi che si possono verificare usando lo spaccalegna e le
relative misure per porvi rimedio.
Problema Probabile causa Rimedio
Il motore non si avvia Il salvamotore è intervenuto Lasciate raffreddare il motore e
premete il salvamotore
Il tronco non viene spaccato Il tronco non è posizionato
correttamente
Il tronco supera le dimensioni
consentite
Il cuneo non taglia
Perdita di olio
La valvola limitatrice della
pressione è stata modificata
Posizionate il tronco correttamente
Riducete le dimensioni del tronco
Affilate il cuneo. Eliminate bave e
tacche dal cuneo
Contattate un rivenditore
autorizzato
Contattate un rivenditore
autorizzato
Lo spingitore si muove in avanti
oscillando o con forti vibrazioni
Aria nel circuito dell’olio Controllate il livello dell’olio.
Rabboccatelo se necessario.
Se il problema continua a
sussistere contattate un rivenditore
autorizzato
L’olio fuoriesce dal cilindro o da
altri punti
Vite di sfiato non allentata durante
l’esercizio
Vite di sfiato non serrata durante il
trasporto
Tappo a vite di scarico dell’olio non
serrato
Guarnizione dell’olio consumata
Allentate la vite di sfiato
Serrate sempre la vite di sfiato
prima del trasporto
Serrate il tappo a vite di scarico
dell’olio
Contattate un rivenditore
autorizzato
I
30
Anleitung_BT_LS_44_SPK1:_ 06.07.2010 10:26 Uhr Seite 30

Related product manuals