EasyManua.ls Logo

Electra EMF 615M BK - Page 37

Electra EMF 615M BK
Print Icon
To Next Page IconTo Next Page
To Next Page IconTo Next Page
To Previous Page IconTo Previous Page
To Previous Page IconTo Previous Page
Loading...
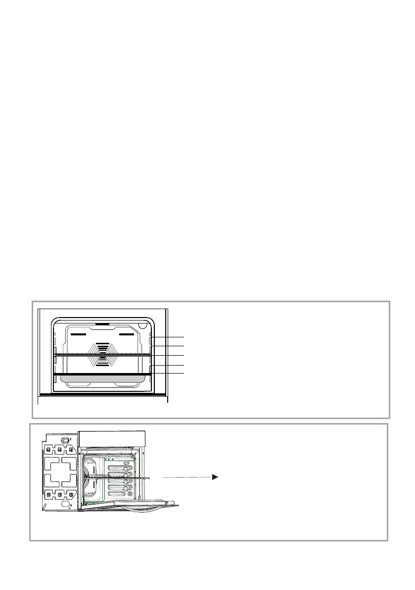
5. rack
4. rack
3. rack
2. rack
1. rack
4.8. ACCESSORIES USED IN THE OVEN
It is recommended that you use the containers indicated on the table depending on the food
you will cook in your oven, you can also use glass containers, cake cutters, special oven
trays suiatble for use in your oven, available in the market. Pay attention to the information
given by the mufacturer firm concerning this issue. If small sized containers are used, place
this container on the inner grill wire so it will be precisely on the middle of the wire. The
information given below should be implemented for enamelled containers.
If the food to be cooked does not completely cover the oven tray, if the food is taken out of the
deep-freezer or if the tray is used to collect the dripping juices of the foods during the grill
operation; deformation might be observed on the tray due to high temperatures forming
during the cooking/frying operation. This is normal, physical state thay results during the
heat transfer. Do not leave a glass tray or container in a cold environment immediately after
cooking in them. Do not place them on cold and wet surfaces. Ensure that they slowly cool off
placing them on a dry piece of cloth. Otherwise, the glass tray or container might break. If you
are going to perform a grill operation in your oven, we recommend that use use the grill on
tray, supplied together with your product (if your product includes this equipment). This way,
splattering and dripping oils will not make the oven interior dirty. If you are going to use the
large wire grill, insert a tray into one of the lower racks to avoid accumulation of the oils. To
make cleaning easier, add some water into it as well. In a grilling operation, use the 3. Or the
4.rack and ail the grill to prevent the food to be grilled from sticking to the grill.
Wire grid: Used for grills or placing
different containers other than the
cooking tray on it.
Deep tray: Used for baking stews.
WARNING- Fit the grid correctly into
any correspondent rack in the oven
cavity and push it to the end.

Related product manuals