EasyManua.ls Logo

Electrolux EHT8TI - Page 6

Electrolux EHT8TI
40 pages
Print Icon
To Next Page IconTo Next Page
To Next Page IconTo Next Page
To Previous Page IconTo Previous Page
To Previous Page IconTo Previous Page
Loading...
6
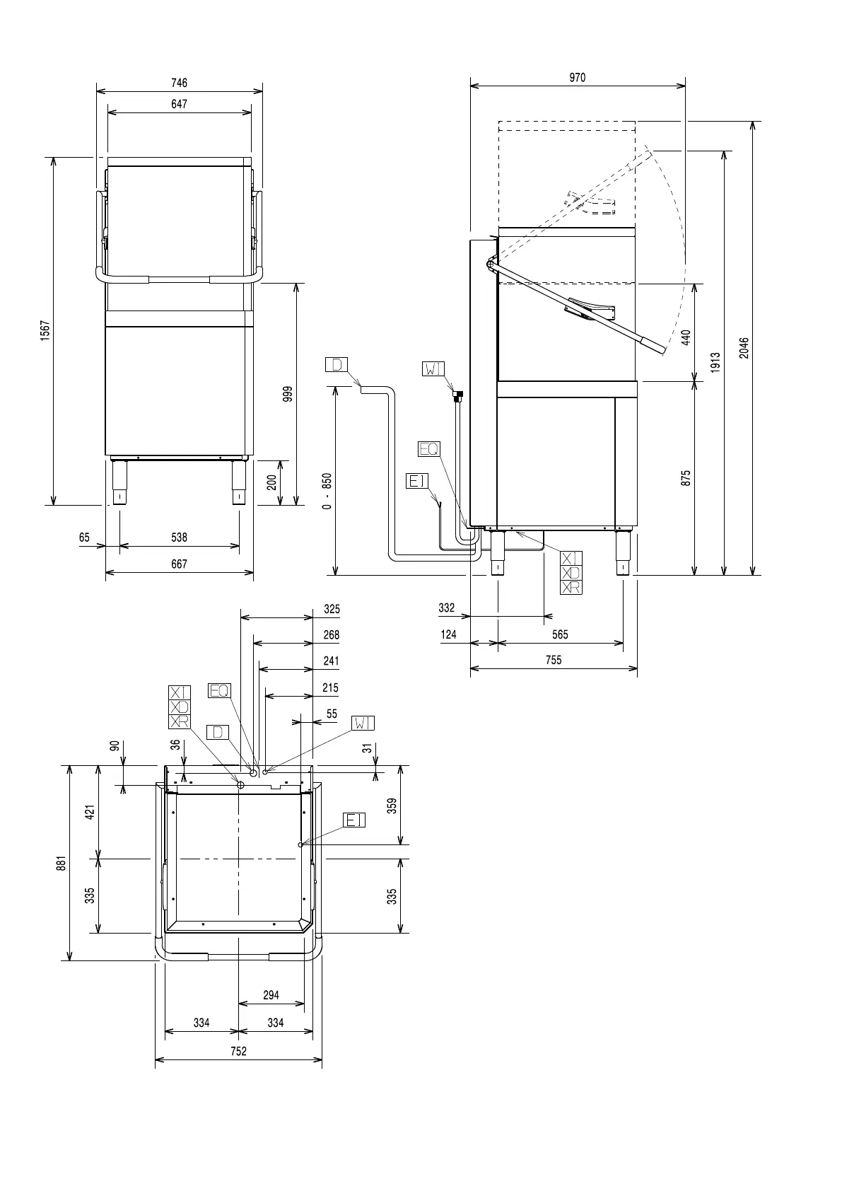
Installation diagram Manual hood type (double skin) with drain pump
and without Energy Saving Device (ESD)

Table of Contents

Related product manuals