EasyManua.ls Logo

Electrolux EUC1WS - Page 3

Electrolux EUC1WS
32 pages
Print Icon
To Next Page IconTo Next Page
To Next Page IconTo Next Page
To Previous Page IconTo Previous Page
To Previous Page IconTo Previous Page
Loading...
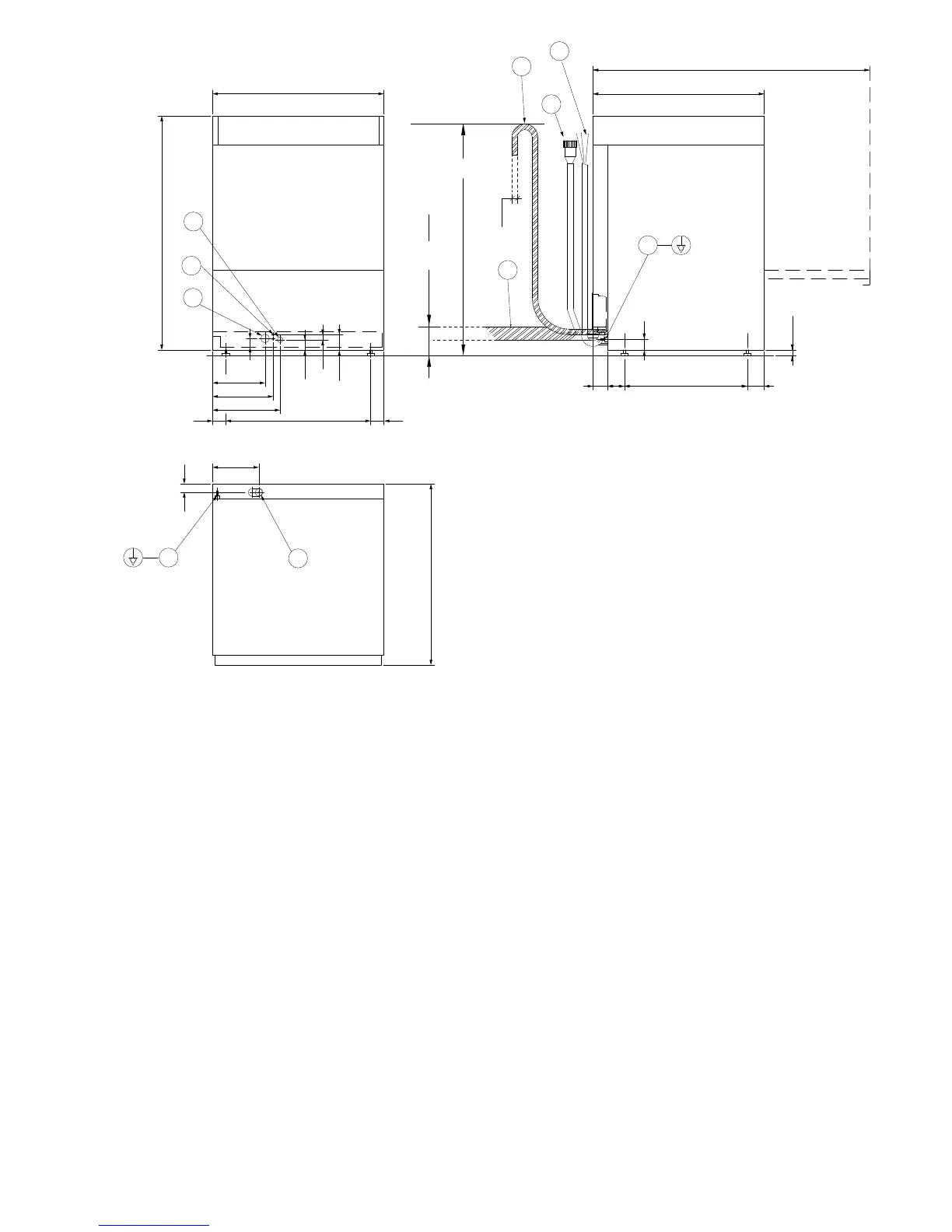
3
600
820
46 508 46
XD
D
WI
35.5
54.4
40
15
184
212.5
236.5
38
61
59 431 59
980
D
D
WI
EI
EQ
20
MAX
610
EI
162
30
EQ
645
Ø = 40
Ø = 20
(750.........1000)
(0.......100)

Related product manuals