EasyManua.ls Logo

Elvox VIMAR 931A - Page 6

Elvox VIMAR 931A
12 pages
Print Icon
To Next Page IconTo Next Page
To Next Page IconTo Next Page
To Previous Page IconTo Previous Page
To Previous Page IconTo Previous Page
Loading...
R
AC
C
AS
BL
BI
RO
A+
A-
Art.8878
S3
21
CH
E
CN1
6E
8
6C
A
4
8
6S
6P
7
3
6E
5
1
2
AU
6
7
2
3
1
3
6E
1
2
AU
7
6
5
8
3
4
B
12345
D
A
PRI
3-12 C2 867 C1 CP 15OAS
C
L1
N° C 3763
RETE-MAINS
RÉSEAU-NETZ
RED-REDE
CITOFONO-PHONE
POSTE-HAUSTELEFON
TELÉFONO-TELEFONE
Art. 8878
ALIMENTATORE - POWER SUPPLY
ALIMENTATION - NETZGERÄT
ALIMENTADOR
Art. 931A
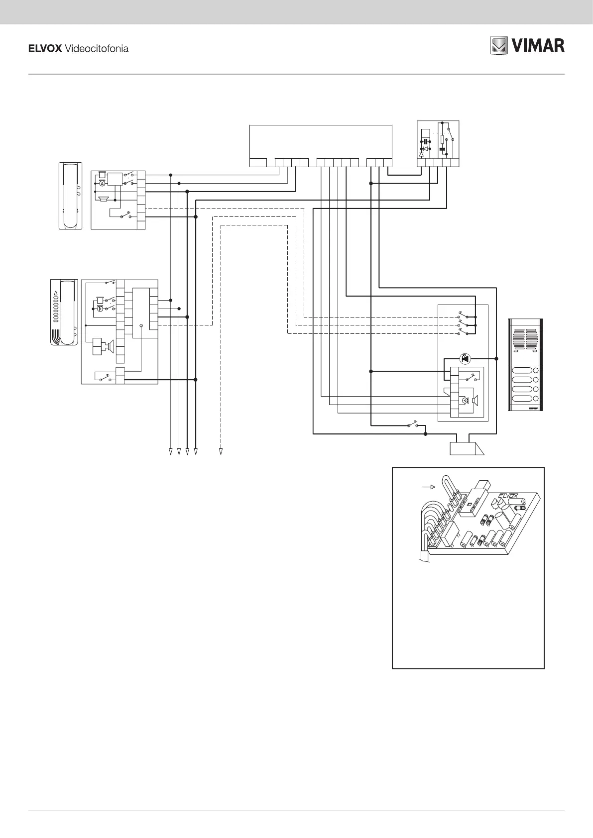
SCHEMA DI COLLEGAMENTO PORTIERE ELET TRI CO CON SISTEMA DI CHIA MA TA “SOUND SYSTEM”, SEGRETO DI CONVER-
SAZIONE, APER TU RA DELLA SERRATURA DOPO LA CHIAMATA E CHIAMATA IN TARGA.
WIRING DIAGRAM OF ELECTRIC DOOR-OPENER SYSTEM WITH CALL SYSTEM “SOUND SYSTEM”, CONVERSATION PRIVACY,
LOCK RELEASE AFTER THE CALL AND FOR NOTICE OF CALL IN DOOR ENTRY PANEL.
SCHÉMA DES CONNEXIONS POUR PORTIER ÉLECTRIQUE AVEC APPEL “SOUND SYSTEM”, SECRET DE CONVERSATION,
OUVERTURE DE LA GÂCHE APRÈ L’APPEL ET POUR AVIS D’APPEL DANS LA PLAQUE DE RUE.
SCHALTPLAN FÜR TÜRSPRECHANLAGE MIT “SOUND SYSTEM” RUF, MITHÖRSPERRE, TÜRÖFFNUNG NACH DEM RUF UND FÜR
RUFTONANZEIGE IN KLINGELTABLEAU.
ESQUEMA DE CONEXIONADO PORTERO ELÉCTRICO CON LLAMADA “SOUND SYSTEM”, SECRETO DE CONVERSACIÓN, ABER
-
TURA DE LA CERRADURA DESPUES DE LA LLAMADA Y CONFIRMACION DE LLAMADA EN PLACA.
ESQUEMA DE LIGAÇÃO DO PORTERO ELÉCTRICO COM CHAMADA “SOUND SYSTEM”, SEGREDO DE CONVERSAÇÃO, ABER
-
TURA DO TRINCO APOS A CHAMADA E PARA AVISO DE CHAMADA NA BOTONEIRA.
RELÈ
RELAY
RELAIS
Art. 0170/101
A- Targa con posto esterno
Entrance panel
Plaque de rue avec poste externe
Klingeltableau mit Außenstelle
Placa con aparato externo
Botoneira com posto externo
serie-série 3300, 8000, 8100,
PATAVIUM, 1200, 1300
B- Pulsante supplementare ser ra tu ra
Additional push-button for lock
Poussoir supplémentaire gâche
zusätzliche Türöffnertaste
Pulsador suplementario cerradura
Botão suplementar de trinco
C- Serratura elettrica - Electric lock
Gâche électrique - Elektrischer Türöffner
Cerradura eléctrica - Trinco eléctrico 12V~
D- Posto esterno - Outdoor unit
Poste externe - Außenstelle
Aparato externo - Posto esterno
Art. 0930/000.04 - 930A
E- Art. 6155
CITOFONO-PHONE
POSTE-HAUSTELEFON
TELÉFONO-TELEFONE
Art. 6200 + Art. 6155
Nel citofono Art. 8878 spostare il ponticello sui
terminali “AC-C”.
On interphone Art. 8878 displace jumper on
terminal “AC-C”.
Dans le poste d’appartement Art. 8878 dé-
placer le pontage sur les bornes “AC-C”.
Bei Haustelefon Art. 8878 die Brücke an Klem-
men “AC-C” verlegen.
En el interfono Art. 8878 desplazar el puente
sobre los bornes “AC-C”.
No interfone Art. 8878 mudar a pon te nos ter-
minais “AC-C”.
L1- Modulo LED targa
Led module for entrance panel.
Module LED pour plaque de rue
LED-Modul für Klingeltableau.
Módulo Led para placa.
Módulo LED para botoneira.
(10 moduli-modules-Modulen-módulos LED max.)
30 moduli LED con/with/avec/mit/con/com Art. M832
40 moduli LED con/with/avec/mit/con/com Art. 0832/030
6
931A

Related product manuals