EasyManua.ls Logo

Epson ELPSC35 - Page 49

Epson ELPSC35
84 pages
Print Icon
To Next Page IconTo Next Page
To Next Page IconTo Next Page
To Previous Page IconTo Previous Page
To Previous Page IconTo Previous Page
Loading...
Guía de instalación
7
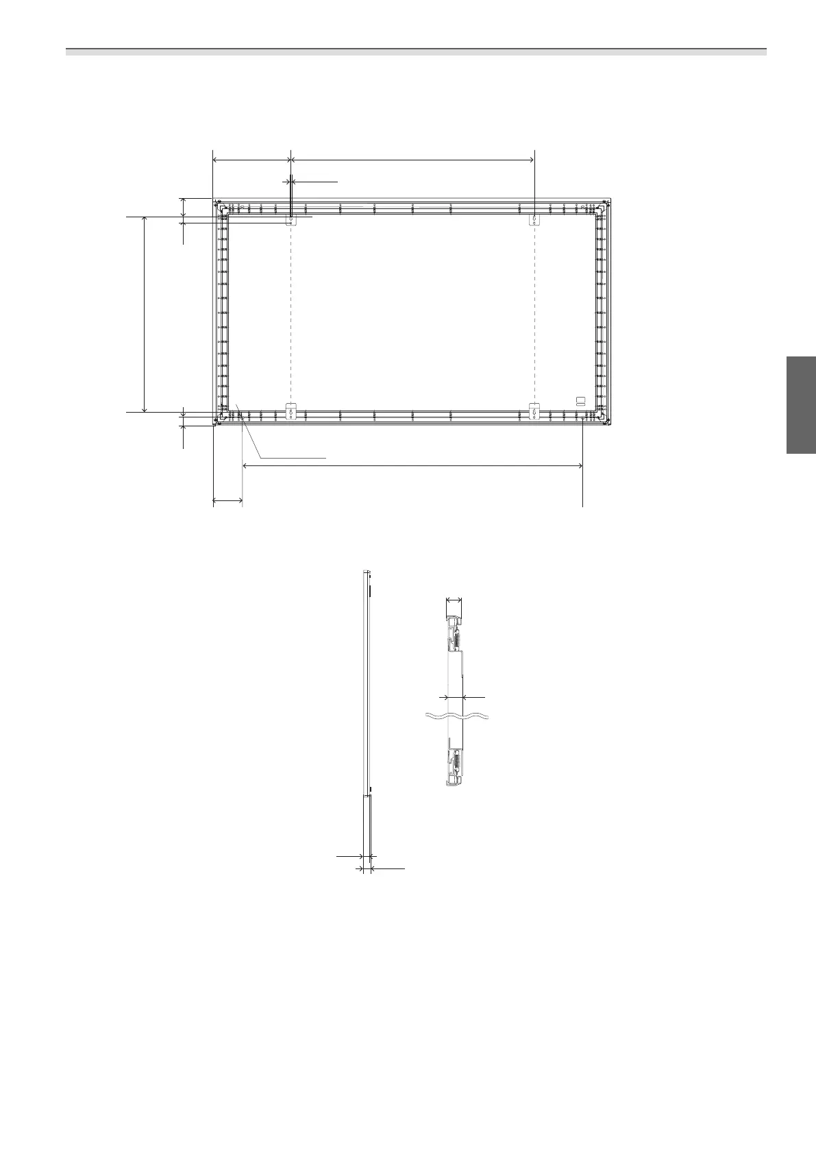
Parte trasera
38
(1.5)
85
(3.3)
30
(1.2)
143
(5.6)
2XΦ20
100"
1948 (76.7)
120"
2391 (94.1)
100"
1117 (44.0)
120"
1366 (53.8)
8X6
100"
382 (15.0)
120"
379 (14.9)
100"
1470 (57.9)
120"
1920 (75.6)
Sección lateral y transversal
30
(1.2)
34
(1.3)
34
(1.3)
31
(1.2)
La distancia entre la pared y la superficie de la pantalla es de aproximadamente 31 mm/1,2".

Related product manuals