EasyManua.ls Logo

ESD 92 Series - 6.1 Schematic for ESD 9213

ESD 92 Series
16 pages
Print Icon
To Next Page IconTo Next Page
To Next Page IconTo Next Page
To Previous Page IconTo Previous Page
To Previous Page IconTo Previous Page
Loading...
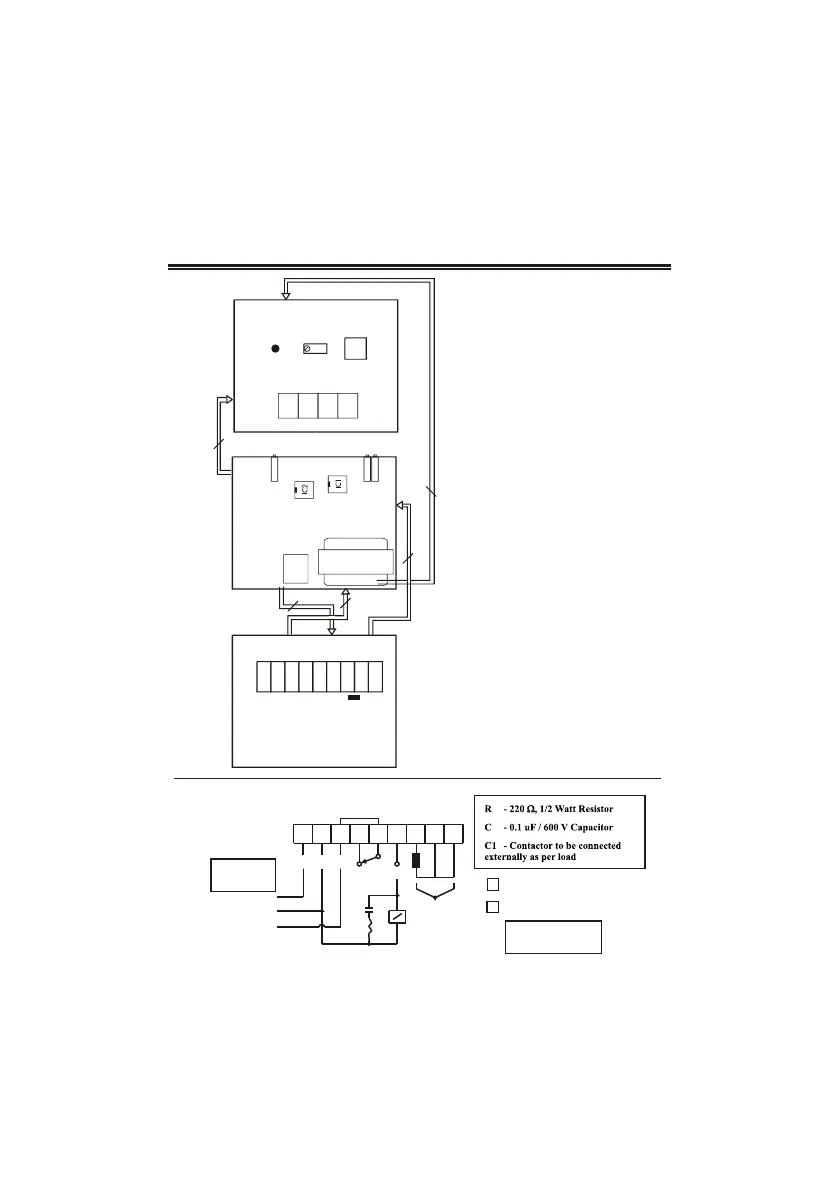
6.1 Schematic & Connection Diagram for ESD 9213
E N P
NC
P
NO
RL1
C
R
C1
1 2 3 4 5 6 7 8 9
Pt 100
+
-
TC
SUPPLY
VOLTAGE
Pt-100 (3 WIRE RTD)
TC - THERMOCOUPLE
2II
Display board
ESD - 9123DPM-R3
CONTROL SET PRESS
DISPLAY
7 Pin connector
Secondary
Sensitivity
Span
Zero
Transformer
ESD - 189
Relay
Sensor
Primary
Backcard
ESD - 9123BK-R3
E N P NC P NO R G B
Relay1
Mother board
ESD - 9213MB4
TB
User Terminals
1 2 3 4 5 6 7 8 9
CONTROL - Red LED's for Relay
Status
SET - Potentiomenters for
setpoint adjust
PRESS - Press Switches to
read set values
DISPLAY - 12.5 mm 7 segment
RED LED
VSEN - ‘Sensitivity’
adjust Potentiometers
SPAN - ‘Span’ adjust
Potentiometer
ZERO - ‘Zero’ adjust
Potentiometer
IC1 - Amplifier
IC2 - Comparator
RL - 12 V DC Relays
TB - PBT Terminal board