EasyManua.ls Logo

Exmark FR524 - Page 25

Exmark FR524
28 pages
Print Icon
To Next Page IconTo Next Page
To Next Page IconTo Next Page
To Previous Page IconTo Previous Page
To Previous Page IconTo Previous Page
Loading...
20
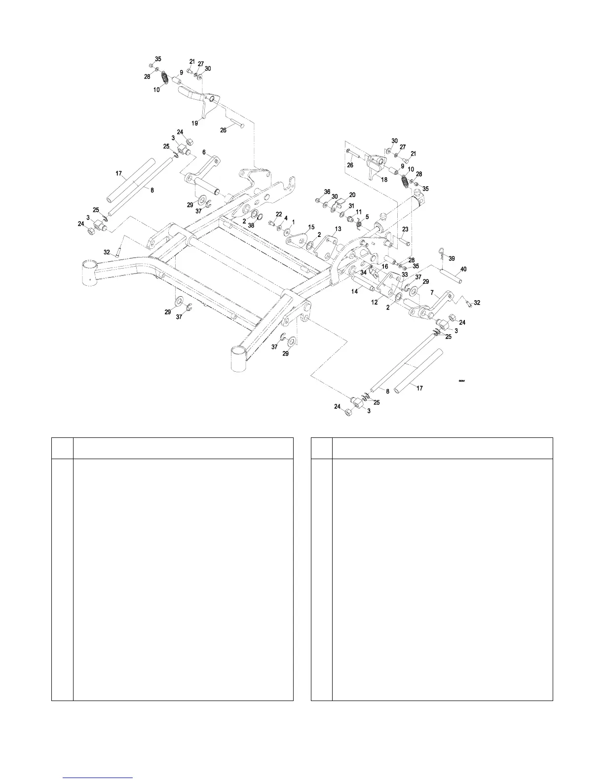
5.3 FRONT FRAME GROUP
Item
Part No.
Description
Qty.
1 1-373034 Washer ..................................................1
2 1-523157 Washer ..................................................3
3 1-633441 Swivel, Deck Mount Rear.......................4
4 98-5975 Washer, Spring Disk 3/8 ........................1
5 103-8316 Spring, Torsion ......................................1
6 103-9699-01 Wld, Decklift Arm...................................1
7 103-9708-01 Wld, Decklift Arm...................................1
8 103-9710 Rod, Decklift ..........................................2
9 103-9714 Spacer, Spring Anchor...........................2
10 105-1210 Spring-Extension....................................2
11 107-0075 Bushing..................................................1
12 109-3013-01 Plate, Cylinder Mount.............................1
13 109-3014-01 Plate, Cylinder Mount.............................1
14 109-0047 Pin, Decklift Stop ...................................1
15 109-0340-01 Arm, Deck Lift ........................................1
16 109-1896 Arm, Height Indicator .............................1
17 109-2065 Tube, Decklift Rod .................................2
18 109-2205 Wld, Lock Lever LH ...............................1
19 109-2206 Wld, Lock Lever RH...............................1
20 109-2760 Arm, PTO Switch ...................................1
Item
Part No.
Description
Qty.
21 323-34 Screw, HH 3/8-16 x 5/8..........................2
22 323-4 Screw, HH 3/8-16 x 3/4..........................1
23 323-9 Screw, HH 3/8-16 x 1 3/4....................... 1
24 3217-11 Nut, Hex 5/8-11...................................... 4
25 32151-48 E-Ring ...................................................6
26 3230-8 Bolt, Carriage 5/16-18 x 2 1/2................ 2
27 3253-5 Washer, Lock 3/8 .................................. 2
28 3256-23 Washer, 5/16 SAE.................................4
29 3256-29 Washer, 7/8 SAE................................... 4
30 3256-4 Washer, 3/8 Std.....................................3
31 3256-69 Washer-Flat........................................... 1
32 3274-18 Screw, SH 5/16-18 x 1 1/4..................... 4
33 3290-500 Screw, PPH #10-24 x 5/8....................... 2
34 3296-2 Nut, Nyloc #10-24..................................2
35 3296-29 Nut, Nyloc 5/16-18.................................4
36 3296-39 Nut, Nyloc 3/8-16................................... 1
37 32151-103 E-Ring ................................................... 4
38 32151-29 Ring, Retaining...................................... 1
39 1-806005 Hairpin, Cotter .......................................1
40 109-0045 Pin, Cylinder Mount ...............................1
Exmark red touch up paint (spray paint - P/N 1-850337 - .6 oz liquid bottle - P/N 103-9140).

Other manuals for Exmark FR524