EasyManua.ls Logo

FAFCO Solar Bear - Page 5

Default Icon
12 pages
Print Icon
To Next Page IconTo Next Page
To Next Page IconTo Next Page
To Previous Page IconTo Previous Page
To Previous Page IconTo Previous Page
Loading...
Installation (continued)
Ground Rack Example
2' 2' 2' 2' 2' 2' 2' 2' 2' 2' 2'
22'
2
1009
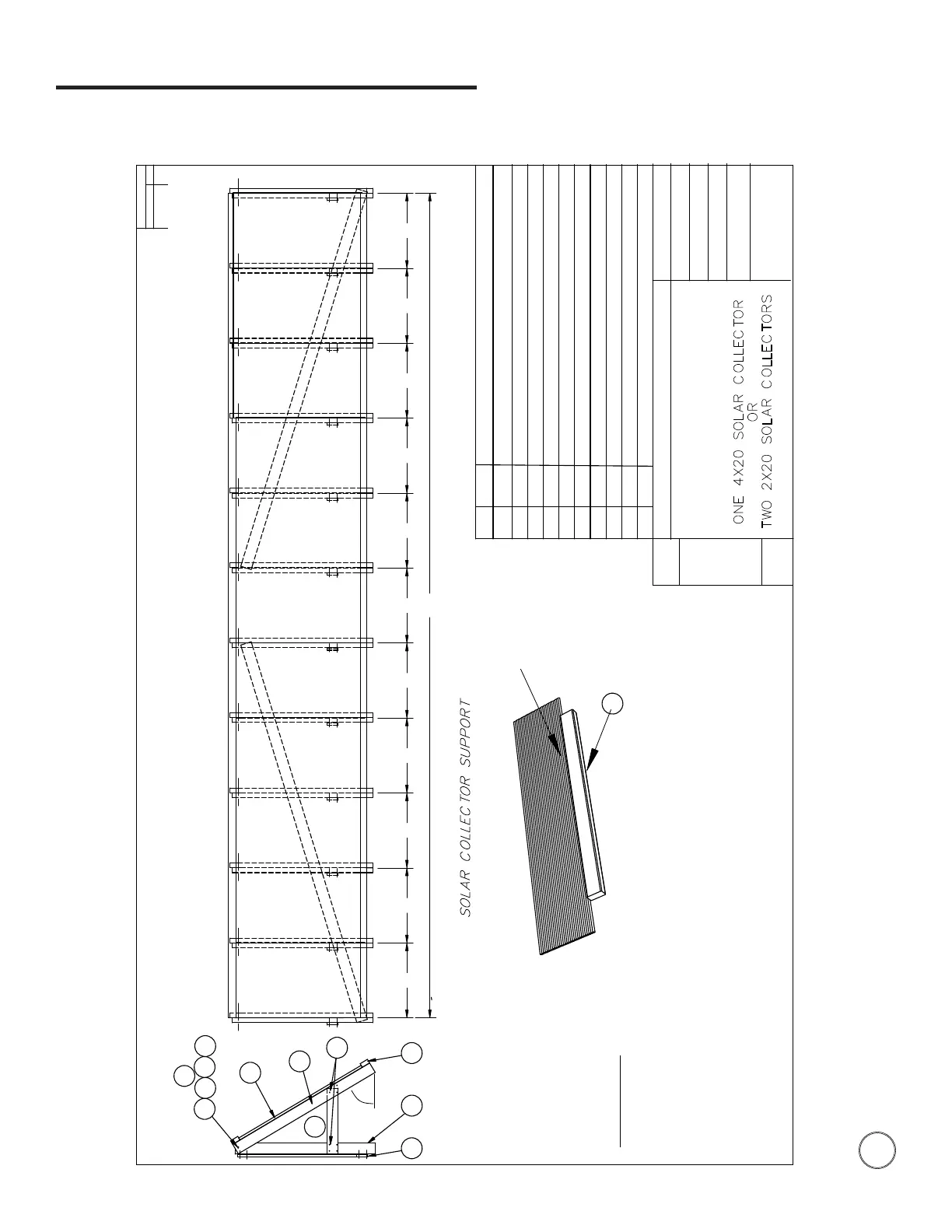
TWO 2X20 SOLAR COLLECTORS
8
TYP 12-PLCS
9
3
.) RACK IS DESIGNED FOR 30 DEGREE (7/12) PITCH.
WASHER, LOCK, 3/8"
CUT QTY-12, 55"L
7
NUT, HEX, 3/8"128
WOOD SCREW,
GROUND RACK FOR
THE POOL.
10 3
LUMBER,2x4x10' (
DRAWING NO. QTY
NEXT ASSEMBLY
LUMBER,2x4x10' (
5
.)
REV
SHEET OF
DWG NO.
SCALE
APPROV
CHECKED
DRAWN
NOTES:
TY-12, 21"L)33
LUMBER,1x4x10'74
BOLT, CARRIAGE, 3/8", 5"L
INFO AND KNOW-HOW HEREON ARE CONFIDENTIAL AND MAY NOT BE USED, REPRODUCED
OR REVEALED TO OTHERS EXCEPT IN ACCORD WITH THE CONTRACT OR OTHER WRITTEN PERMIS-
SION OF FAFCO INC. ANY REPRODUCTIONS IN PART OR WHOLE SHALL INCLUDE THIS NOTATION.
item
12
4
ABOVE GROUND POOLS
CUT QTY-12, 27.5"L
)
qty
description
1 3 PLYWOOD,1/4"-3/8" THK, 4'x 8'
62
LUMBER,1x4x8' (CUT Q
1"L
4
3
7
A. Holtz 3/22/05
1
9/29/09
A
2
6
07366
ECR 6559
A
OR
.) SECURE PANELS USING SOLAR COLLECTOR ROOF MOUNT KIT.
1 1
N.T.S.
12
10
SOLAR COLLECTORS, ADD A SECOND 1"x4" UNDER TOP COLLECTOR.
M.Rubio
COLLECTOR
WHEN INSTALLING COLLECTORS ON THE GROUND, DO NOT
)
ADDED
SUPPORT PER
The following drawing is provided as a suggestion for the construction of a rack for your solar system.
SOLAR COLLECTOR SUPPORT
BOTTOM 1"x4" PROVIDES SUPPORT FOR SOLAR COLLECTOR. FOR TWO
1
BUILD A RACK THAT CAN ALLOW CHILDREN ACCESS TO
ONE 4X20 SOLAR COLLECTOR
5
WASHER, FLAT, 3/8"126
4
2.) ENSURE SOLAR COLLECTOR AND PIPING ARE PROPERLY SUPPORTED
AND CAN FREELY EXPAND AND CONTRACT WITHOUT RUBBING
AGAINST SHARP EDGES.
o
30
Solar Collector
4
4
Ground Rack

Related product manuals